목록으로
최종 업데이트: 2026-04-22 13:21
2024타경7118
울산지방법원 본원 1계(052-216-8261)
부동산
부동산임의경매
유찰
진행중
| 소재지 |
-
(울산광역시 북구 중산동 1285-12)
|
|---|---|
| 물건종류 | 주택 |
| 면적 |
토지: 0.00㎡ (0평)
건물: 536.30㎡ (162.23평)
|
| 현재 위치 | 울산광역시 북구 중산동 1285-12 |
| 소유자 / 채무자 | 망 임혁주의 상속인 안경예 / 안경예 |
| 채권자 | 케이씨유엔피엘대부(주) |
| 배당종기일 | 2024-11-18 |
감정가
1,553,287,800
최저가
532,778,000
보증금
53,277,800
입찰 진행 내역
| 회차/구분 | 입찰기일 | 최저매각가격 | 결과 |
|---|---|---|---|
| 1차 (진행) | 2026-01-14 | 1,553,287,800 | 유찰 |
| 2차 (진행) | 2026-02-26 | 1,087,301,000 | 유찰 |
| 3차 (진행) | 2026-04-02 | 761,111,000 | 유찰 |
| 4차 (진행) | 2026-05-12 | 532,778,000 |
임차인 현황
| 임차인명 | 점유여부 | 전입/확정/배당 | 보증금 / 차임 | 예상배당액 | 대항력 |
|---|---|---|---|---|---|
| 임용규 | 점포 1층 전부 118.0㎡ |
전입: -
확정: - 배당: 2024-11-15 |
0
월 0
|
0 | - |
매각물건 현황
| 구분 | 순번 | 소재지 | 용도/구조/면적 | 감정가 | 비고 |
|---|---|---|---|---|---|
| 토지 | 토지 | 중산동 1285-12 | 도시지역,장애물제한표면구역,제2종일반주거지역,가축사육제한구역,도...도시지역,장애물제한표면구역,제2종일반주거지역,가축사육제한구역,도시개발구역,지구단위계획구역 / 대 363.7㎡ (110.02평) | 2,470,000 | 898,339,000원 |
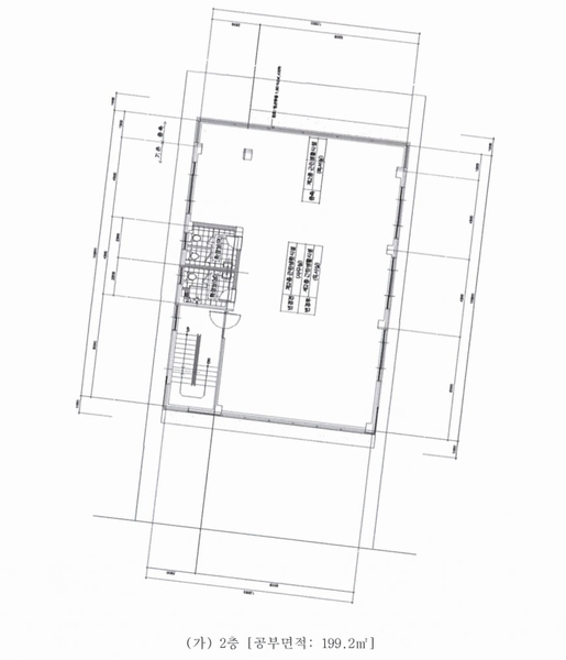
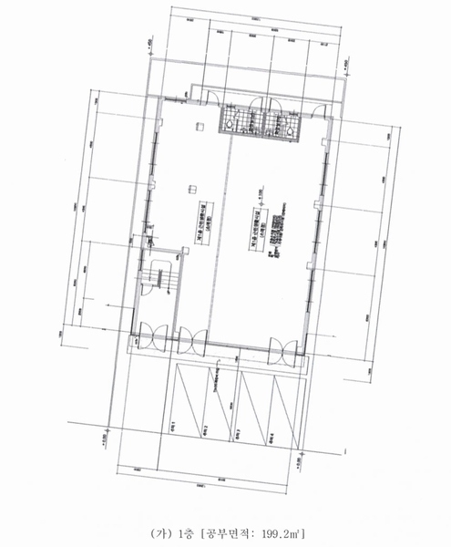
| 건물 | 1 | 중산2길 3 [중산동 1285-12]철근콘크리트구조 (철근)콘크리트지붕 | 1층 / 근린생활시설 | 199 | 1,204,000원 |
| 2 | 2층 | 근린생활시설 | 181.2㎡(54.81평) / 1,204,000원 | 218,164,800 | * 사용승인:2017.01.23 |
| 3 | 2층 | 근린생활시설 | 18㎡(5.45평) / 1,228,000원 | 22,104,000 | * 사용승인:2018.09.10* 증축부분 |
| 4 | 3층 | 단독주택 | 113.7㎡(34.39평) / 1,376,000원 | 156,451,200 | * 사용승인:2017.01.23 |
| 제시외건물 | 1 | 중산2길 3 [중산동 1285-12]철근콘크리트구조 (철근)콘크리트지붕 | 단층 / 주택일부 | 7 | 760,000원 |
| 2 | 단층 | 주택일부 | 6.3㎡(1.91평) / 760,000원 | 4,788,000 | 매각포함* 3충소재 |
| 3 | 단층 | 주택일부 | 5.2㎡(1.57평) / 760,000원 | 3,952,000 | 매각포함* 3충소재 |
| 4 | 단층 | 주택일부 | 5.2㎡(1.57평) / 760,000원 | 3,952,000 | 매각포함* 3충소재 |
현황 및 위치
* 본건은 울산광역시 북구 중산동 소재 중산초등학교 북서측 인근에 위치하는 토지로서 주변은 단독주택, 근린생활시설, 공동주택 등으로 형성된 지역임. * 본건까지 차량출입 가능하며 인근에 버스정류장이 소재하여 대중교통사정은 보통시됨. * 인접지와 등고 평탄한 세장형의 토지로서 주상용건부지로 이용중임. * 본건 남측으로 폭약 8미터의 도로에 접함.
참고사항
* 일괄매각. 제시외 건물 포함
등기부 현황
건물
| 순위 | 접수일자 | 권리종류 | 권리자 | 채권금액 | 소멸여부 | 비고 |
|---|---|---|---|---|---|---|
| 1(갑1) | 2017-03-14 | 소유권보존 | 임OOOOOO | 0 | 각 1/2 | |
| 2(을10) | 2024-05-09 | 근저당 | 케OOOOOOOOOOO | 948,000,000 | 소멸 | 말소기준등기확정채권양도전:울산행복신협 |
| 3(갑2) | 2024-08-26 | 임의경매 | 케OOOOOOOOOOO | 799,480,581 | 소멸 | 2024타경7118 |
| 4(갑3) | 2024-10-15 | 안경예지분가압류 | 농OOO | 18,719,367 | 소멸 | 2024카단1038 |
| 5(갑4) | 2024-10-17 | 안경예지분가압류 | 울OOOOOOO | 80,000,000 | 소멸 | 2024카단13886 |
| 6(갑5) | 2025-04-03 | 임혁주지분전부이전 | 안OO | 0 | 상속, 1/2 |
관련 문서 (PDF)
클릭하면 원본 파일이 열립니다