목록으로
최종 업데이트: 2026-04-22 17:18
2024타경151072
서울남부지방법원 본원 6계(02-2192-1973)
부동산
부동산강제경매
매각
진행중
| 소재지 |
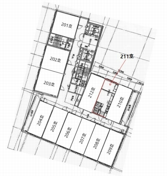
서울특별시 강서구 화곡로 238, 아덴하임 2층 211호
(서울특별시 강서구 화곡동 24-92)
|
|---|---|
| 물건종류 | 오피스텔[계약14평형] |
| 면적 |
토지: 4.71㎡ (1.42평)
건물: 26.63㎡ (8.06평)
|
| 현재 위치 | 서울특별시 강서구 화곡로 238, 아덴하임 2층 211호 |
| 소유자 / 채무자 | 김세진 / 김세진 |
| 채권자 | 장영균 |
| 배당종기일 | 2025-04-07 |
감정가
243,000,000
최저가
194,400,000
보증금
19,440,000
진행 상태 / 매각 결과
매각
completed = false
매각허가결정
| 상태 코드 | 2 | 상태 텍스트 | 매각허가결정 |
|---|---|---|---|
| 매각가 | 213,455,000원 | 매각가율 | 0% |
| 입찰 수 | 1 | 매수인 | 한국토지주택공사 |
| 차순위 입찰가 | 0원 | 매각허가 결정 | 매각허가결정 |
| 매각허가 결정일 | 2026-03-12 | 대금 지급기한 | - |
| 대금 지급상태 | - | 배당기일 | - |
| 배당 종결일 | - | 다음 확인 예정 | 2026-04-23 09:00 |
입찰 진행 내역
| 회차/구분 | 입찰기일 | 최저매각가격 | 결과 |
|---|---|---|---|
| (진행) | 2025-07-15 | 243,000,000 | 변경 |
| 1차 (진행) | 2026-01-15 | 243,000,000 | 유찰 |
| 2차 (진행) | 2026-03-05 | 194,400,000 |
진행 메모
매각 : 213,455,000 원 (87.84%)
(입찰 1 명,매수인:한국토지주택공사)
매각결정기일 : 2026.03.12 - 매각허가결정
대금지급기한 : 2026.04.17
대금납부 2026.04.14 / 배당기일 2026.05.27
임차인 현황
| 임차인명 | 점유여부 | 전입/확정/배당 | 보증금 / 차임 | 예상배당액 | 대항력 |
|---|---|---|---|---|---|
| 장영균 | 주거용 전부 |
전입: 2021-05-20
확정: 2021-04-29 배당: 2025-01-14 |
245,000,000
월 0
|
0 | 있음 |
매각물건 현황
| 구분 | 순번 | 소재지 | 용도/구조/면적 | 감정가 | 비고 |
|---|---|---|---|---|---|
| 건물 | 17층중 2층 | 20.11.05 | 26.6271㎡(8.05평)[계약14평] / 오피스텔 | 170,100,000 |
현황 및 위치
* 본건은 서울특별시 강서구 화곡동 소재 "서울화곡초등학교" 북측 인근에 위치하며, 주위는 오피스텔, 다세대주택, 근린생활시설 등이 혼재된 지역임. * 본건까지 제반 차량 접근이 가능하며, 인근에 버스정류장이 소재하는 등 제반 대중교통상황은 보통시됨. * 본건은 부정형의 토지로서, 오피스텔 및 근린생활시설 건부지로 이용중임. * 본건은 북서측으로 노폭 약 29m, 남동측으로 노폭 약 4m 도로와 접하고 있음.
등기부 현황
건물
| 순위 | 접수일자 | 권리종류 | 권리자 | 채권금액 | 소멸여부 | 비고 |
|---|---|---|---|---|---|---|
| 1(갑4) | 2021-05-20 | 공유자전원지분전부이전 | 김OO | 0 | 매매,거래가액:245,000,000 | |
| 2(을1) | 2023-06-16 | 주택임차권(전부) | 장OO | 245,000,000 | 전입:2021.05.20확정:2021.04.29 | |
| 3(갑5) | 2023-09-08 | 가압류 | 주OOOOOOOOOOOOOOO | 260,000,000 | 소멸 | 말소기준등기2023카단55524 |
| 4(갑7) | 2024-02-01 | 압류 | 서OOOO | 0 | 소멸 | |
| 5(갑9) | 2024-12-30 | 강제경매 | 장OO | 245,155,500 | 소멸 | 2024타경151072 |
관련 문서 (PDF)
클릭하면 원본 파일이 열립니다