목록으로
최종 업데이트: 2026-04-28 17:22
2024타경71805
수원지방법원 성남지원 6계(031-737-1326)
부동산
부동산임의경매
취하/변경
진행중
| 소재지 |
경기도 성남시 분당구 판교백현로 38, 더샵판교퍼스트파크 102동 18층 1801호
(경기도 성남시 분당구 백현동 608)
|
|---|---|
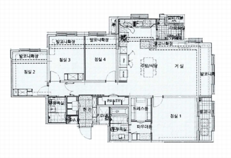
| 물건종류 | 아파트[공급45평형] |
| 면적 |
토지: 48.04㎡ (14.53평)
건물: 114.56㎡ (34.65평)
|
| 현재 위치 | 경기도 성남시 분당구 판교백현로 38, 더샵판교퍼스트파크 102동 18층 1801호 |
| 소유자 / 채무자 | 김용진 / 김용진 |
| 채권자 | 페퍼저축은행 |
| 배당종기일 | 2025-03-12 |
감정가
1,750,000,000
최저가
1,225,000,000
보증금
122,500,000
입찰 진행 내역
| 회차/구분 | 입찰기일 | 최저매각가격 | 결과 |
|---|---|---|---|
| 1차 (진행) | 2026-03-23 | 1,750,000,000 | 유찰 |
| (진행) | 2026-04-27 | 1,225,000,000 | 변경 |
진행 메모
본사건은 변경 되었으며 현재 매각기일이 지정되지 않았습니다.
매각물건 현황
| 구분 | 순번 | 소재지 | 용도/구조/면적 | 감정가 | 비고 |
|---|---|---|---|---|---|
| 건물 | 22층중 18층 | 21.06.09 | 114.5609㎡(34.65평)[공급45평] / 방(4개), 거실, 주방/식당, 욕실(2개),드레스룸 등 | 1,050,000,000 |
현황 및 위치
* 경기도 성남시 분당구 낙생고등학교 남서측 인근에 위치하며, 주위는 아파트단지와 근린생활시설이 혼성된 일반주거지대임. * 간선도로인 안양판교로 주변이고, 지하철 판교역까지 3킬로미터 거리로서 간선도로 및 대중교통시설 접근성 무난함. * 부정형 평지로서 아파트단지로 이용되고 있음. * 3차로 포장도로인 판교백현로와 접하여 통행 및 승용차 접근성 양호함.
참고사항
* 2025. 9. 11. 대지권등기 됨(대지권을 일괄하여 평가함).
등기부 현황
건물
| 순위 | 접수일자 | 권리종류 | 권리자 | 채권금액 | 소멸여부 | 비고 |
|---|---|---|---|---|---|---|
| 1(갑2) | 2021-09-27 | 소유권이전(매매) | 김OO | 0 | 거래가액:1,033,700,000 | |
| 2(을1) | 2021-09-27 | 근저당 | 부OOOOOOOOOO | 1,200,000,000 | 소멸 | 말소기준등기 |
| 3(을2) | 2022-01-10 | 근저당 | 페OOOOO | 600,000,000 | 소멸 | |
| 4(을3) | 2022-07-08 | 근저당 | 페OOOOO | 120,000,000 | 소멸 | |
| 5(갑6) | 2024-12-23 | 임의경매 | 페OOOOO | 615,021,492 | 소멸 | 2024타경71805 |
관련 문서 (PDF)
클릭하면 원본 파일이 열립니다