목록으로
최종 업데이트: 2026-04-26 01:59
2025타경183
춘천지방법원 원주지원 1계(033-738-1120)
부동산
부동산임의경매
유찰
진행중
| 소재지 |
-
(강원특별자치도 횡성군 안흥면 지구리 39)
|
|---|---|
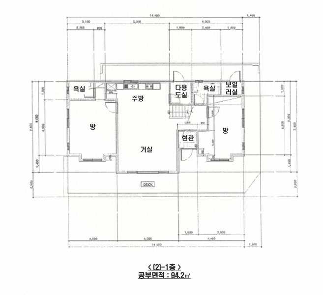
| 물건종류 | 주택 |
| 면적 |
토지: 0.00㎡ (0평)
건물: 151.68㎡ (45.88평)
|
| 현재 위치 | 강원특별자치도 횡성군 안흥면 지구리 39 |
| 소유자 / 채무자 | 장지춘 / 장지춘 |
| 채권자 | 원주밝음신협 |
| 배당종기일 | 2025-05-12 |
감정가
282,791,400
최저가
138,568,000
보증금
13,856,800
입찰 진행 내역
| 회차/구분 | 입찰기일 | 최저매각가격 | 결과 |
|---|---|---|---|
| 1차 (진행) | 2026-03-09 | 282,791,400 | 유찰 |
| 2차 (진행) | 2026-04-06 | 197,954,000 | 유찰 |
| 3차 (진행) | 2026-05-11 | 138,568,000 |
임차인 현황
| 임차인명 | 점유여부 | 전입/확정/배당 | 보증금 / 차임 | 예상배당액 | 대항력 |
|---|---|---|---|---|---|
| 김은순 | 주거용 전부 |
전입: 2023-10-16
확정: 2023-10-16 배당: 2025-03-27 |
89,000,000
월 0
|
0 | 없음 |
매각물건 현황
| 구분 | 순번 | 소재지 | 용도/구조/면적 | 감정가 | 비고 |
|---|---|---|---|---|---|
| 토지 | 토지 | 1 | 지구리 39 / 가축사육제한구역,성장관리계획구역,계획관리지역 | 771 | 103,000원(52,200원) |
| 토지 | 2 | 지구리 39-4 | 가축사육제한구역,성장관리계획구역,계획관리지역 / 도로 75.5㎡ (22.84평) | 34,000 | 2,567,000원 |
| 토지 | 3 | 지구리 39-6 | 가축사육제한구역,성장관리계획구역,계획관리지역 / 도로 71㎡ (21.48평) | 34,000 | 2,414,000원 |
| 토지 | 4 | 지구리 39-8 | 가축사육제한구역,성장관리계획구역,계획관리지역 / 도로 30.5㎡ (9.23평) | 34,000 | 1,037,000원 |
| 토지 | 5 | 지구리 59-7 | 가축사육제한구역,성장관리계획구역,계획관리지역 / 도로 21㎡ (6.35평) | 34,000 | 714,000원 |
| 건물 | 상터로 512-19 [지구리 39]일반목구조 목구조위 슁글지붕 | 단층 | 단독주택 / 94.2㎡(28.5평) | 1,560,000 | 146,952,000원 |
| 제시외건물및기타 | 1 | 지구리 39목조 판넬지붕 | 단층 / 물탱크실 | 9 | 320,000원 |
| 2 | 관정 | / | 9,000,000 | 매각포함 | |
| 3 | 상터로 512-19 [지구리 39]일반목구조 목구조위 슁글지붕 | 단층 | 다락 / 48.48㎡(14.67평) | 780,000 | 37,814,400원 |
현황 및 위치
* 본건은 강원특별자치도 횡성군 안흥면 지구리 소재 "이안교" 남동측 인근에 위치하며 주변은 주택, 농경지, 임야 등이 주로 소재하는 지역임. * 본건까지 차량 접근 가능하며, 인근 버스 정류장까지의 거리 및 배차간격을 고려할 때 대중 교통 이용 다소 불편함. * 1) : 사다리형의 토지로서 주거용 건부지로 이용중임. 2~5) : 부정형의 토지로서 도로로 이용중임. * 1) : 본건 서측으로 토2에 개설된 노폭 약 4m의 포장도로에 접함. 2) : 본건 북서측으로 토5에 개설된 노폭 약 4m의 포장도로에 접함. 3) : 본건 북서측으로 토2에 개설된 노폭 약 4m의 포장도로에 접함. 4) : 본건 서측 및 북측으로 토2,3에 개설된 노폭 약 4m의 포장도로에 접함. 5) : 본건 북서측으로 노폭 약 4m의 포장도로에 접함.
참고사항
* 일괄매각, 제시외 건물 포함, 지적경계불분명 * 토1) 및 인접지인 지구리 57-1 경계지상에 소재(정확한 위치는 측량 등 필요)하는 물탱크실 및 관정은 매각대상에 포함 * 감정평가액(최저매각가격)은 지상에 소재하는 수목을 포함한 가격임 * 본건 건물에 부속된 데크 등은 건물에 포함하여 감정평가 하였음.
등기부 현황
건물
| 순위 | 접수일자 | 권리종류 | 권리자 | 채권금액 | 소멸여부 | 비고 |
|---|---|---|---|---|---|---|
| 1(갑1) | 2019-02-19 | 소유권보존 | 장OO | 0 | ||
| 2(을4) | 2021-05-31 | 근저당 | 원OOOOO | 120,000,000 | 소멸 | 말소기준등기 |
| 3(갑4) | 2024-01-24 | 압류 | 횡OO | 0 | 소멸 | |
| 4(갑5) | 2024-04-04 | 가압류 | 횡OOOOOO | 18,502,537 | 소멸 | 2024카단13 |
| 5(갑6) | 2024-04-05 | 가압류 | 농OOOO | 166,522,833 | 소멸 | 2024카단130 |
| 6(갑7) | 2024-07-11 | 압류 | 국OOOOOOOO | 0 | 소멸 | |
| 7(갑8) | 2025-02-07 | 임의경매 | 원OOOOO | 102,028,790 | 소멸 | 2025타경183 |
| 8(갑9) | 2025-02-17 | 압류 | 국OOOOOOO | 0 | 소멸 | |
| 9(갑7) | 2025-05-02 | 공매공고 | 국OOOOOOOO | 0 | 소멸 | 공매공고(한국자산관리공사2024-11471-012) |
| 10(을8) | 2025-10-27 | 주택임차권(전부) | 김OO | 89,000,000 | 소멸 | 전입:2023.10.16확정:2023.10.16 |
관련 문서 (PDF)
클릭하면 원본 파일이 열립니다