목록으로
최종 업데이트: 2026-04-27 09:05
2025타경9944
서울남부지방법원 본원 6계(02-2192-1973)
부동산
부동산강제경매
유찰
진행중
| 소재지 |
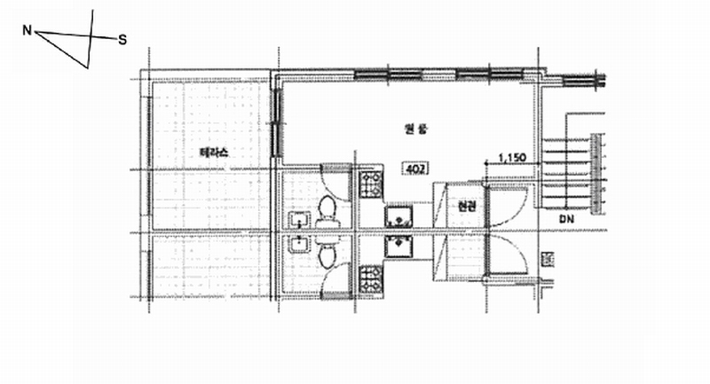
서울특별시 구로구 개봉로12길 10-6, 준하우스 4층 402호
(서울특별시 구로구 개봉동 289-4)
|
|---|---|
| 물건종류 | 다세대(빌라)[공급7평형] |
| 면적 |
토지: 12.86㎡ (3.89평)
건물: 18.29㎡ (5.53평)
|
| 현재 위치 | 서울특별시 구로구 개봉로12길 10-6, 준하우스 4층 402호 |
| 소유자 / 채무자 | 김선제 / 김선제 |
| 채권자 | 신미정 외 3명 |
| 배당종기일 | 2025-08-13 |
감정가
151,000,000
최저가
77,312,000
보증금
7,731,200
입찰 진행 내역
| 회차/구분 | 입찰기일 | 최저매각가격 | 결과 |
|---|---|---|---|
| 1차 (진행) | 2026-01-15 | 151,000,000 | 유찰 |
| 2차 (진행) | 2026-03-05 | 120,800,000 | 유찰 |
| 3차 (진행) | 2026-04-14 | 96,640,000 | 유찰 |
| 4차 (진행) | 2026-05-26 | 77,312,000 |
임차인 현황
| 임차인명 | 점유여부 | 전입/확정/배당 | 보증금 / 차임 | 예상배당액 | 대항력 |
|---|---|---|---|---|---|
| 신미정 | 주거용 전부 |
전입: 2025-04-16
확정: 2020-09-21 배당: 2025-07-03 |
130,000,000
월 0
|
0 | 없음 |
매각물건 현황
| 구분 | 순번 | 소재지 | 용도/구조/면적 | 감정가 | 비고 |
|---|---|---|---|---|---|
| 건물 | 5층중 4층 | 19.09.05 | 18.29㎡(5.53평)[공급7평] / 주거용 | 45,300,000 | * 개별난방시설 |
현황 및 위치
* 본건은 서울특별시 구로구 개봉동 소재 ""서울개봉초등학교"" 남서측 인근에 위치하며 주위는 단독주택, 다세대주택, 아파트, 주상용건물, 오피스텔, 공공시설, 교육시설, 근린생활시설 등이 혼재하는 주거지역으로서 제반주위환경은 보통임. * 본건까지 차량진출입이 가능하며 주위에 노선버스정류장 등 이 소재하여 대중교통상황은 보통임. * 대체로 가장형의 평지로서, 공동주택(다세대주택) 및 제1종근린생활시설(소매점) 등으로 이용중임. * 본건 동측으로 개봉로12길과 접함.
등기부 현황
건물
| 순위 | 접수일자 | 권리종류 | 권리자 | 채권금액 | 소멸여부 | 비고 |
|---|---|---|---|---|---|---|
| 1(갑3) | 2020-09-29 | 소유권이전 | 김OO | 0 | 신탁재산의귀속 | |
| 2(갑7) | 2022-10-17 | 가압류 | 주OOOOOOOOOOOOOOOOO | 190,000,000 | 소멸 | 말소기준등기2022카단105040 |
| 3(갑11) | 2025-05-12 | 강제경매 | 신OOOOOO | 127,610,000 | 소멸 | 2025타경9944 |
관련 문서 (PDF)
클릭하면 원본 파일이 열립니다