목록으로
최종 업데이트: 2026-04-26 19:45
2024타경32506
수원지방법원 여주지원 4계(031-880-7448)
부동산
부동산강제경매
유찰
진행중
| 소재지 |
-
(경기도 양평군 서종면 수입리 174-27)
|
|---|---|
| 물건종류 | 주택 |
| 면적 |
토지: 0.00㎡ (0평)
건물: 133.08㎡ (40.26평)
|
| 현재 위치 | 경기도 양평군 서종면 수입리 174-27 |
| 소유자 / 채무자 | 김영일 외 1명 / 김영일 외 1명 |
| 채권자 | 홍윤식 |
| 배당종기일 | 2024-06-13 |
감정가
324,031,600
최저가
38,122,000
보증금
3,812,200
입찰 진행 내역
| 회차/구분 | 입찰기일 | 최저매각가격 | 결과 |
|---|---|---|---|
| 1차 (진행) | 2025-09-03 | 324,031,600 | 유찰 |
| 2차 (진행) | 2025-10-15 | 226,822,000 | 유찰 |
| 3차 (진행) | 2025-11-19 | 158,775,000 | 유찰 |
| 4차 (진행) | 2025-12-24 | 111,143,000 | 유찰 |
| 5차 (진행) | 2026-03-04 | 77,800,000 | 유찰 |
| 6차 (진행) | 2026-04-08 | 54,460,000 | 유찰 |
| 7차 (진행) | 2026-05-13 | 38,122,000 | |
| 8차 (진행) | 2026-06-17 | 26,685,000 |
임차인 현황
| 임차인명 | 점유여부 | 전입/확정/배당 | 보증금 / 차임 | 예상배당액 | 대항력 |
|---|---|---|---|---|---|
| 홍윤식 | 주거용 토지 전부, 건물 전부 |
전입: 2021-03-31
확정: 2021-03-31 배당: 2024-06-11 |
280,000,000
월 0
|
0 | 있음 |
매각물건 현황
| 구분 | 순번 | 소재지 | 용도/구조/면적 | 감정가 | 비고 |
|---|---|---|---|---|---|
| 토지 | 토지 | 수입리 174-27 | 배출시설설치제한지역,공장설립승인지역,수질보전특별대책지역,자연보...배출시설설치제한지역,공장설립승인지역,수질보전특별대책지역,자연보전권역,보전관리지역 / 대 350㎡ (105.88평) | 428,000 | 149,800,000원 |
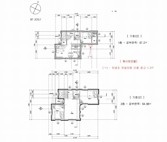
| 건물 | 1 | 화서1로 54-1 [수입리 174-27 주건축물제1동]철근콘크리트구조 경사지붕 | 1층 / 단독주택 | 67 | 1,320,000원 |
| 2 | 2층 | 단독주택 | 64.68㎡(19.57평) / 1,320,000원 | 85,377,600 | * 사용승인:2018.01.19 |
| 제시외건물 | 화서1로 54-1 [수입리 174-27 주건축물제1동]판넬조판넬지붕 | 단층 | 창고 / 1.2㎡(0.36평) | 0 | 150,000원 |
현황 및 위치
* 본건은 경기도 양평군 서종면 수입리 소재 "수입2리마을회관" 동측 인근에 위치하며, 부근은 농경지, 주택 및 펜션, 임야 등이 혼재하는 지역입니다. * 본건까지 차량 접근 가능하며 대중교통사정은 버스정류장과의 거리 및 운행횟수 등으로 보아 다소 불편합니다 * 사다리의 완경사지를 평탄조성한 단독주택 건부지입니다. * 본건의 남측 인접지(수입리 174-29번지) 상의 로폭 약 4미터 내외의 현황도로를 통하여 접근합니다.
참고사항
* 일괄매각. 제시외 창고 매각 포함. * 본 건물은 도로명 주소가 "경기도 양평군 서종면 화서1로 54-1"으로 변경됨 * 본건의 일부 지상에 소재하는 석축, 옹벽은 토지가치에 화체되어 있으며, 일부 지상에 소재하는 조경수는 관행에 따라 토지에 포함하여 평가하였음 * 본건 건물의 종물 및 부합물 중 경제적 가치가 작은 종물 및 부합물 등은 거래관행에 따라 건물에 포함하여 평가하였음 * 본건 건물은 다락층이 소재하며, 이를 고려하여 건물을 평가하였음 ☞현황서상 내용:본건 건물에 제시외 데크, 2층 베란다, 소형창고2개 가 있음. 지번주소 `수입리 174-27`의 도로명주소는 `화서1로 54-1`임. 지번주소 `수입리 174-5`의 도로명주소는 `화서1로 54-2`임. 지번주소`수입리 174-27`에 맞추어 조사함
등기부 현황
건물
| 순위 | 접수일자 | 권리종류 | 권리자 | 채권금액 | 소멸여부 | 비고 |
|---|---|---|---|---|---|---|
| 1(갑1) | 2020-01-16 | 소유권보존 | 김OO | 0 | ||
| 2(갑2) | 2024-03-13 | 강제경매 | 홍OO | 280,000,000 | 소멸 | 말소기준등기2024타경32506 |
| 3(을3) | 2024-11-26 | 주택임차권(주택의전부) | 홍OO | 280,000,000 | 전입:2021.03.31확정:2021.03.31 |
관련 문서 (PDF)
클릭하면 원본 파일이 열립니다