목록으로
최종 업데이트: 2026-04-22 13:21
2024타경1472
수원지방법원 여주지원 2계(031-880-7446)
부동산
부동산강제경매
유찰
진행중
| 소재지 |
경기도 양평군 옥천면 용천로297번길 8-144
(경기도 양평군 옥천면 용천리 176-152)
|
|---|---|
| 물건종류 | 주택 |
| 면적 |
토지: 0.00㎡ (0평)
건물: 165.89㎡ (50.18평)
|
| 현재 위치 | 경기도 양평군 옥천면 용천로297번길 8-144 |
| 소유자 / 채무자 | 박광섭 / 박광섭 |
| 채권자 | 김양우 |
| 배당종기일 | 2024-07-03 |
감정가
235,025,120
최저가
115,163,000
보증금
11,516,300
입찰 진행 내역
| 회차/구분 | 입찰기일 | 최저매각가격 | 결과 |
|---|---|---|---|
| (진행) | 2025-07-09 | 235,025,120 | 변경 |
| 1차 (진행) | 2026-02-04 | 235,025,120 | 유찰 |
| 2차 (진행) | 2026-03-18 | 164,518,000 | 유찰 |
| 3차 (진행) | 2026-04-22 | 115,163,000 | |
| 4차 (진행) | 2026-05-20 | 80,614,000 |
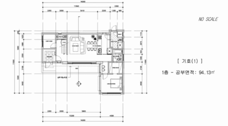
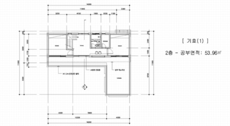
매각물건 현황
| 구분 | 순번 | 소재지 | 용도/구조/면적 | 감정가 | 비고 |
|---|---|---|---|---|---|
| 건물 | 1 | 용천로297번길 8-144 [용천리 176-152]철근콘크리트구조 스라브지붕 | 1층 / 단독주택 | 94 | 1,568,000원 |
| 2 | 2층 | 단독주택 | 53.96㎡(16.32평) / 1,568,000원 | 84,609,280 | * 사용승인:2023.08.22* LPG 보일러에 의한 난방설비 |
| 제시외건물및기타 | 1 | 용천로297번길 8-144 [용천리 176-152]조립식판넬조 판넬지붕 등 1.조립식판넬조 판넬지붕, 2.철재 합판지붕 | 단층 / 창고 | 5 | 180,000원 |
| 2 | 단층 | 창고 | 12.8㎡(3.87평) / 150,000원 | 1,920,000 | 매각포함 |
현황 및 위치
* 본건은 경기도 양평군 옥천면 용천리 소재 "큰골마을" 서측 인근에 위치함.
참고사항
* 건물만 매각 * 제시외 건물 포함 ☞현황서상 내용:제시외 가추, 창고, 비가림막, 정원수, 철재펜스, 석축이 있음
전문가 코멘트
** 건물만 경매되는 물건입니다. 따라서 법정지상권이나 건물등기 있는 차지권, 혹은 낙찰 후 토지 매입, 임차 등의 방법으로 토지 사용권을 확보하여 건물의 안정적인 유지가 가능한지가 중요한 물건입니다. 일반론에 대한 추가적인 내용은 PC버전은 등기부 요약란 아래의 유치권/법정지상권 버튼을 눌러 참고하시고 모바일버전의 경우 자료실의 관련자료를 참고하시기 바랍니다. 본 건에서 구체적으로 검토하여야 할 사항은 다음과 같습니다. 본건의 경우 등기부를 보면 건물과 토지의 소유자가 동일합니다. 따라서 법정지상권이 성립할 것으로 판단합니다.
등기부 현황
건물
| 순위 | 접수일자 | 권리종류 | 권리자 | 채권금액 | 소멸여부 | 비고 |
|---|---|---|---|---|---|---|
| 1(갑1) | 2023-08-25 | 소유권보존 | 박OO | 0 | ||
| 2(갑2) | 2024-03-26 | 강제경매 | 김OO | 176,069,917 | 소멸 | 말소기준등기2024타경1472 |
관련 문서 (PDF)
클릭하면 원본 파일이 열립니다