목록으로
최종 업데이트: 2026-04-25 17:29
2024타경34496
수원지방법원 여주지원 6계(031-880-7450)
부동산
부동산강제경매
매각
진행중
| 소재지 |
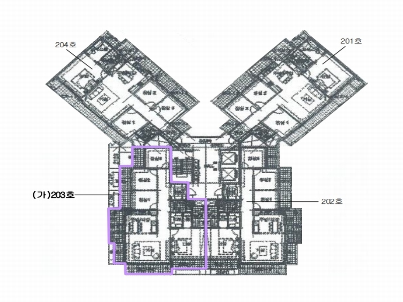
경기도 이천시 부발읍 경충대로2050번길 43, 현대성우오스타4단지 405동 2층 203호
(경기도 이천시 부발읍 아미리 1247)
|
|---|---|
| 물건종류 | 아파트[공급45평형] |
| 면적 |
토지: 62.14㎡ (18.8평)
건물: 122.94㎡ (37.19평)
|
| 현재 위치 | 경기도 이천시 부발읍 경충대로2050번길 43, 현대성우오스타4단지 405동 2층 203호 |
| 소유자 / 채무자 | 정상호 / 정상호 |
| 채권자 | 오케이캐피탈(주) |
| 배당종기일 | 2024-08-12 |
감정가
472,000,000
최저가
79,329,000
보증금
7,932,900
진행 상태 / 매각 결과
매각
completed = false
매각허가결정
| 상태 코드 | 2 | 상태 텍스트 | 매각허가결정 |
|---|---|---|---|
| 매각가 | 101,000,000원 | 매각가율 | 0% |
| 입찰 수 | 1 | 매수인 | 장미선 |
| 차순위 입찰가 | 0원 | 매각허가 결정 | 매각허가결정 |
| 매각허가 결정일 | 2026-04-08 | 대금 지급기한 | - |
| 대금 지급상태 | - | 배당기일 | - |
| 배당 종결일 | - | 다음 확인 예정 | 2026-04-26 09:00 |
입찰 진행 내역
| 회차/구분 | 입찰기일 | 최저매각가격 | 결과 |
|---|---|---|---|
| 1차 (진행) | 2025-06-11 | 472,000,000 | 유찰 |
| (진행) | 2025-07-16 | 330,400,000 | 변경 |
| 2차 (진행) | 2025-08-20 | 330,400,000 | 유찰 |
| 3차 (진행) | 2025-09-24 | 231,280,000 | 유찰 |
| 4차 (진행) | 2025-10-29 | 161,896,000 | 유찰 |
| 5차 (진행) | 2025-12-03 | 113,327,000 | 유찰 |
| 6차 (진행) | 2026-04-01 | 79,329,000 |
진행 메모
매각 : 101,000,000 원 (21.4%)
(입찰 1 명,매수인:장미선)
매각결정기일 : 2026.04.08 - 매각허가결정
대금지급기한 : 2026.05.15
임차인 현황
| 임차인명 | 점유여부 | 전입/확정/배당 | 보증금 / 차임 | 예상배당액 | 대항력 |
|---|---|---|---|---|---|
| 서성원 | 주거용 |
전입: 2019-05-27
확정: - 배당: - |
0
월 0
|
0 | - |
매각물건 현황
| 구분 | 순번 | 소재지 | 용도/구조/면적 | 감정가 | 비고 |
|---|---|---|---|---|---|
| 건물 | 20층중 2층 | 10.02.26 | 122.944㎡(37.19평)[공급45평] / 주거용 | 330,400,000 | * 개별 난방설비 |
현황 및 위치
* 본건은 경기도 이천시 부발읍 아미리 소재 <이천TG> 남서측 인근에 위치하고, 본건 주위는 아파트단지, 각공 근린생활시설, 공장 등이 혼재하는 지역으로서 제반 주위환경은 보통시 됨. * 본건 단지까지 제반 차량출입이 가능하며 인근에 버스정류장 등이 소재하는 등 대중교통상황은 보통시 됨. * 2필 일단의 부정형의 평지로서 아파트 등 건부지로 이용중임 * 본건 단지 남측 및 동측으로 왕복 3차로의 포장도로에 접하며, 남측으로 주 출입구가 개설되어 있음
참고사항
* 외필지 : 아미리1247-1
전문가 코멘트
☞ 임차인 서성원이 전소유자이고, 현소유자와 임대차계약을 체결한 후 현소유자 명의의 소유권이전등기가 경료되었다면 소유권이전등기일 익일부터 임차인으로써의 대항력을 가지게 됩니다.[대법원 99다59306 판결]
등기부 현황
건물
| 순위 | 접수일자 | 권리종류 | 권리자 | 채권금액 | 소멸여부 | 비고 |
|---|---|---|---|---|---|---|
| 1(갑6) | 2020-12-15 | 소유권이전(매매) | 정OO | 0 | 거래가액:420,000,000 | |
| 2(갑7) | 2022-05-17 | 압류 | 국OOOOOOOOOOOOO | 0 | 소멸 | 말소기준등기 |
| 3(갑8) | 2022-06-02 | 압류 | 안OO | 0 | 소멸 | |
| 4(갑9) | 2023-07-11 | 가압류 | 오OOOOOOOO | 13,160,388 | 소멸 | 2023카단819111 |
| 5(갑10) | 2024-05-10 | 강제경매 | 오OOOOOOOO | 15,256,808 | 소멸 | 2024타경34496, 오케이캐피탈주식회사 가압류의 본 압류로의 이행 |
| 6(갑11) | 2025-01-31 | 압류 | 이OO | 0 | 소멸 |
관련 문서 (PDF)
클릭하면 원본 파일이 열립니다