목록으로
최종 업데이트: 2026-04-22 13:21
2023타경52018
수원지방법원 평택지원 6계(031-650-3093)
부동산
부동산강제경매
유찰
진행중
| 소재지 |
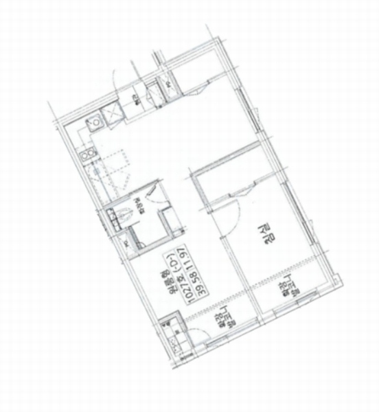
경기도 평택시 포승읍 평택항로184번길 3-40, 더스위트하버 10층 1027호
(경기도 평택시 포승읍 만호리 574-7)
|
|---|---|
| 물건종류 | 아파트[공급15평형] |
| 면적 |
토지: 6.83㎡ (2.07평)
건물: 39.58㎡ (11.97평)
|
| 현재 위치 | 경기도 평택시 포승읍 평택항로184번길 3-40, 더스위트하버 10층 1027호 |
| 소유자 / 채무자 | 윤경석 / 윤경석 |
| 채권자 | 문정현 |
| 배당종기일 | 2024-03-04 |
감정가
98,000,000
최저가
5,649,000
보증금
564,900
입찰 진행 내역
| 회차/구분 | 입찰기일 | 최저매각가격 | 결과 |
|---|---|---|---|
| 1차 (진행) | 2024-09-24 | 98,000,000 | 유찰 |
| (진행) | 2024-10-29 | 68,600,000 | 변경 |
| 2차 (진행) | 2025-03-25 | 68,600,000 | 유찰 |
| 3차 (진행) | 2025-05-13 | 48,020,000 | 유찰 |
| 4차 (진행) | 2025-06-17 | 33,614,000 | 유찰 |
| 5차 (진행) | 2025-08-12 | 23,530,000 | 유찰 |
| (진행) | 2025-09-16 | 16,471,000 | 변경 |
| 6차 (진행) | 2025-12-23 | 16,471,000 | 유찰 |
| 7차 (진행) | 2026-02-03 | 11,529,000 | 유찰 |
| 8차 (진행) | 2026-03-10 | 8,070,000 | 유찰 |
| 9차 (진행) | 2026-04-21 | 5,649,000 |
임차인 현황
| 임차인명 | 점유여부 | 전입/확정/배당 | 보증금 / 차임 | 예상배당액 | 대항력 |
|---|---|---|---|---|---|
| 문정현 | 주거용 전부 |
전입: 2022-01-27
확정: 2022-01-13 배당: 2023-12-04 |
100,000,000
월 0
|
0 | 있음 |
매각물건 현황
| 구분 | 순번 | 소재지 | 용도/구조/면적 | 감정가 | 비고 |
|---|---|---|---|---|---|
| 건물 | 18층중 10층 | 17.04.05 | 39.58㎡(11.97평)[공급15평] / 원룸형아파트 | 58,800,000 | * 보일러설비에 의한 개별난방 구조 |
현황 및 위치
* 경기도 평택시 포승읍 만호리 소재 신당근린공원 북서측 근거리에 위치하는 더스위트하버(공동주택 업무시설 근린생활시설) 내에 소재하며, 인근일대는 공동주택, 업무시설 및 근린생활시설 등이 밀집하여 소재하는 지역으로서 주위는 중.소규모 공장들로 이루어진 산업단지임. * 본 건물까지 차량출입 용이하고 인근에 버스정류장이 소재하며, 차량으로 약8-9분 정도 거리에 서해안고속도로 서평택I.C가 위치함. * 2필1단의 가장형 토지로서 공동주택, 업무시설, * 북동측으로 폭20미터 정도의 포장도로에 접함.
참고사항
* 원룸형 아파트로 이용중임 * 외필지 : 만호리 574-8
등기부 현황
건물
| 순위 | 접수일자 | 권리종류 | 권리자 | 채권금액 | 소멸여부 | 비고 |
|---|---|---|---|---|---|---|
| 1(갑8) | 2021-11-18 | 소유권이전(매매) | 윤OO | 0 | ||
| 2(갑9) | 2022-05-09 | 압류 | 국OOOOOOOO | 0 | 소멸 | 말소기준등기 |
| 3(갑10) | 2023-12-04 | 강제경매 | 문OO | 106,172,131 | 소멸 | 2023타경52018 |
| 4(을1) | 2024-01-29 | 주택임차권(전부) | 문OO | 100,000,000 | 전입:2022.01.27확정:2022.01.13 |
관련 문서 (PDF)
클릭하면 원본 파일이 열립니다