목록으로
최종 업데이트: 2026-04-28 00:01
2024타경4597
수원지방법원 평택지원 7계(031-650-3048)
부동산
부동산임의경매
매각
진행중
| 소재지 |
경기도 평택시 서정역로58번길 19, 서정트인자리애1차 15층 1508호
(경기도 평택시 서정동 304-5)
|
|---|---|
| 물건종류 | 아파트[공급11평형] |
| 면적 |
토지: 4.55㎡ (1.38평)
건물: 27.04㎡ (8.18평)
|
| 현재 위치 | 경기도 평택시 서정역로58번길 19, 서정트인자리애1차 15층 1508호 |
| 소유자 / 채무자 | 이명주 / 이명주 |
| 채권자 | 하나은행 |
| 배당종기일 | 2025-01-08 |
감정가
100,000,000
최저가
49,000,000
보증금
4,900,000
진행 상태 / 매각 결과
매각
completed = false
매각허가결정
| 상태 코드 | 2 | 상태 텍스트 | 매각허가결정 |
|---|---|---|---|
| 매각가 | 68,321,000원 | 매각가율 | 0% |
| 입찰 수 | 9 | 매수인 | 주.신우투자개발. |
| 차순위 입찰가 | 63,200,000원 | 매각허가 결정 | 매각허가결정 |
| 매각허가 결정일 | 2026-04-21 | 대금 지급기한 | - |
| 대금 지급상태 | - | 배당기일 | - |
| 배당 종결일 | - | 다음 확인 예정 | 2026-04-29 09:00 |
입찰 진행 내역
| 회차/구분 | 입찰기일 | 최저매각가격 | 결과 |
|---|---|---|---|
| 1차 (진행) | 2026-01-27 | 100,000,000 | 유찰 |
| 2차 (진행) | 2026-03-17 | 70,000,000 | 유찰 |
| 3차 (진행) | 2026-04-14 | 49,000,000 |
진행 메모
매각 : 68,321,000 원 (68.32%)
(입찰 9 명,매수인:주.신우투자개발. / 차순위금액 63,200,000원)
매각결정기일 : 2026.04.21 - 매각허가결정
임차인 현황
| 임차인명 | 점유여부 | 전입/확정/배당 | 보증금 / 차임 | 예상배당액 | 대항력 |
|---|---|---|---|---|---|
| 윤지섭 | 주거용 미상 |
전입: 2022-12-20
확정: - 배당: - |
0
월 0
|
0 | 없음 |
매각물건 현황
| 구분 | 순번 | 소재지 | 용도/구조/면적 | 감정가 | 비고 |
|---|---|---|---|---|---|
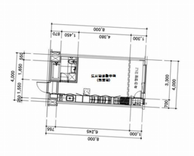
| 건물 | 18층중 15층 | 17.04.07 | 27.04㎡(8.18평)[공급11평] / 원룸형 도시형생활주택 | 60,000,000 | * 도시가스 보일러에 의한 개별난방설비 |
현황 및 위치
* 대상물건은 경기도 평택시 서정동 소재 "서정리역(수도권 전철 1호선)" 북동측 인근에 위치하며, 주위는 단독주택, 공동주택, 업무시설 및 근린생활시설 등이 혼재하는 주택 및 상가 혼용지대로서, 제반 주위환경은 대체로 보통임. * 대상물건까지 차량의 접근이 용이하고, 인근에 노선버스 정류장과 전철역(수도권 전철 1호 선 서정리역)이 소재하는 등 제반 교통상황은 전반적으로 보통임. * 인접지 및 인접도로 대비 등고평탄한 사다리형의 토지로서, 공동주택, 업무시설 및 근린 생활시설 등의 건부지로 이용 중임. * 동측 및 북측으로 각각 노폭 약 9미터 및 약 6미터의 아스콘 포장도로와 접함.
참고사항
* 대상물건의‘대지권의 목적인 토지’중 일부는 도시계획시설(도로)에 저촉되나, 대상물건의 특성 및 저촉면적의 비율 과소 등을 고려할 때 대상물건의 사용·수익·처분 등에 미치는 영향은 미미한 것으로 판단됨
등기부 현황
건물
| 순위 | 접수일자 | 권리종류 | 권리자 | 채권금액 | 소멸여부 | 비고 |
|---|---|---|---|---|---|---|
| 1(갑2) | 2017-06-13 | 소유권이전(매매) | 이OO | 0 | 거래가액:118,000,000 | |
| 2(을1) | 2017-06-13 | 근저당 | 하OOOOOOOOO | 98,400,000 | 소멸 | 말소기준등기 |
| 3(갑4) | 2023-08-09 | 가압류 | 국OOO | 194,111,896 | 소멸 | 2023카단34139 |
| 4(갑5) | 2023-12-08 | 가압류 | 삼OOOOOO | 23,584,713 | 소멸 | 2023카단835908 |
| 5(갑6) | 2024-10-11 | 임의경매 | 하OOOOOOOOOO | 79,519,897 | 소멸 | 2024타경4597 |
관련 문서 (PDF)
클릭하면 원본 파일이 열립니다