목록으로
최종 업데이트: 2026-04-28 00:43
2024타경51456
수원지방법원 평택지원 7계(031-650-3048)
부동산
부동산임의경매
유찰
진행중
| 소재지 |
-
(경기도 평택시 고덕동 2150-2)
|
|---|---|
| 물건종류 | 근린주택 |
| 면적 |
토지: 0.00㎡ (0평)
건물: 257.93㎡ (78.02평)
|
| 현재 위치 | 경기도 평택시 고덕동 2150-2 |
| 소유자 / 채무자 | (주)다인컨설팅 / 이홍순 |
| 채권자 | 이가혜 외1명 |
| 배당종기일 | 2024-12-03 |
감정가
2,473,782,410
최저가
848,508,000
보증금
84,850,800
입찰 진행 내역
| 회차/구분 | 입찰기일 | 최저매각가격 | 결과 |
|---|---|---|---|
| 1차 (진행) | 2025-09-23 | 2,473,782,410 | 유찰 |
| (진행) | 2025-10-28 | 1,731,648,000 | 변경 |
| 2차 (진행) | 2026-03-17 | 1,731,648,000 | 유찰 |
| 3차 (진행) | 2026-04-14 | 1,212,154,000 | 유찰 |
| 4차 (진행) | 2026-06-09 | 848,508,000 | |
| 5차 (진행) | 2026-07-14 | 593,956,000 |
임차인 현황
| 임차인명 | 점유여부 | 전입/확정/배당 | 보증금 / 차임 | 예상배당액 | 대항력 |
|---|---|---|---|---|---|
| 이정수 | 점포 102호 43.2제곱미터 |
전입: -
확정: - 배당: - |
0
월 0
|
0 | - |
| 이현승 | 점포 1층 88.85제곱미터 |
전입: -
확정: 2024-09-26 배당: 2024-12-31 |
50,000,000
월 3,300,000
|
0 | 없음 |
| 최호일 | 점포 43.2제곱미터 |
전입: -
확정: - 배당: - |
0
월 0
|
0 | - |
매각물건 현황
| 구분 | 순번 | 소재지 | 용도/구조/면적 | 감정가 | 비고 |
|---|---|---|---|---|---|
| 토지 | 토지 | 고덕동 2150-2 | 택지개발지구,제1종일반주거지역,지구단위계획구역,상대보호구역,가축사육제한구역 / 대 220.7㎡ (66.76평) | 9,880,000 | 2,180,516,000원 |
| 건물 | 1 | 고덕여염10길 102 [고덕동 2150-2 주건축물제1동]일반철골구조 기타지붕 | 1층 / 다가구주택 1가구 및 근린생활시설 2개호 | 131 | 1,137,000원 |
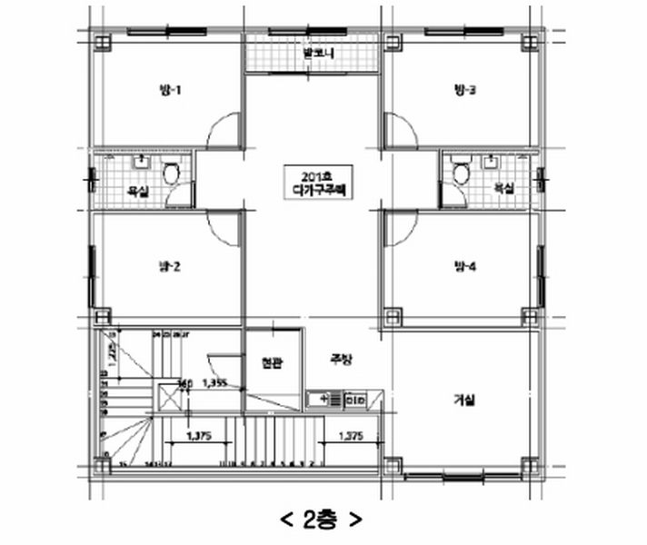
| 2 | 2층 | 다가구주택 1가구 | 126.83㎡(38.37평) / 1,137,000원 | 144,205,710 | * 사용승인:2019.02.25 |
현황 및 위치
* 본건은 경기도 평택시 고덕동 소재 "고덕동 행정복지센터" 북서측 인근에 위치하며, 주위는 근린생활시설, 단독주택, 다세대주택 등이 혼재하는 주상혼합 지역임. * 본건까지 차량진출입 가능하며, 인근의 노선버스정류장의 위치 및 운행빈도 등 제반 대중교통 사정은 보통임. * 인접도로 대비 대체로 평탄한 세로장방형 토지로서, 주상용 건부지로 이용 중임. * 본건 북동측으로 노폭 약 15미터 내외의 중로에, 남서측으로 노폭 약 5미터 내외의 소로에 각각 접하고 있음.
참고사항
* 일괄매각. * 본건 건물은 일반건축물대장 상 "위반건축물"로 등재되어 있으며, 그 내용은 "1.(무단증축) 1층 주택 경량철골 52㎡, 2.(무단용도변경) 1층 주택 -> 소매점 35.085㎡" 로 기재되어 있음. 이와 관련된 시정의무 이행 여부, 적법성 획득 여부는 확인되지 않았음. 위반건축물을 원상회복하라는 시정명령 등의 행정처분이 관할관청으로부터 있을 수 있으므로 확인 요함. * 본건 건물 1층의 일부호실은 복층식 구조임. * 본건 건물은 무단증축 및 무단용도변경 등으로 공부상의 면적과 실제 면적에 차이가 있을 수 있으므로 실제 면적은 별도 확인 요함. * 건축물 대장상 위반건축물임. * 본건의 부합물 중 토지가치에 화체되는 바닥포장 등은 거래관행 등을 고려하여 토지에 포함하여 평가하였음 * 본건의 부합물 중 건물가치에 화체되는 차양 등은 단독가치가 미미하여 별도의 가격을 산정하지 아니하고 거래관행 등을 고려하여 건물에 포함하여 평가하였음.
전문가 코멘트
☞ 위반(불법)건축물일 경우 건축법 제80조에 의해 계고 및 원상복구명령을 받게되고, 원상복구 하지 않으면 매년 2회 이내 이행강제금이 부과되므로 관할 관청을 통하여 위반내용, 이행강제금 부과내역 또는 양성화방안 등을 확인하시고 이로 인해 잔금대출에 영향이 없는지 금융기관에 확인하시기 바랍니다.(상가의 경우 기존 영업허가는 승계가 가능하나 신규 영업허가는 발급이 어려우니 주의하시기 바랍니다.)
등기부 현황
건물
| 순위 | 접수일자 | 권리종류 | 권리자 | 채권금액 | 소멸여부 | 비고 |
|---|---|---|---|---|---|---|
| 1(갑5) | 2022-01-27 | 소유권이전 | (OOOOOOO | 0 | 신탁재산의귀속 | |
| 2(을1) | 2022-01-27 | 근저당 | 양OOOOO | 1,116,000,000 | 소멸 | 말소기준등기 |
| 3(을2) | 2022-02-28 | 근저당 | 이OO | 390,000,000 | 소멸 | |
| 4(갑6) | 2023-05-10 | 압류 | 평OOOOOOOOOO | 0 | 소멸 | |
| 5(갑7) | 2024-09-04 | 임의경매 | 이OO | 365,424,657 | 소멸 | 2024타경51456 |
| 6(갑8) | 2024-10-22 | 압류 | 국OOOOOOOO | 0 | 소멸 | |
| 7(갑9) | 2024-11-08 | 가압류 | 차OO | 30,000,000 | 소멸 | 2024카단13320 |
| 8(갑10) | 2025-11-10 | 임의경매 | 양OOOOO | 1,017,072,295 | 소멸 | 2025타경927 |
관련 문서 (PDF)
클릭하면 원본 파일이 열립니다