목록으로
최종 업데이트: 2026-04-28 09:20
2025타경9755
서울남부지방법원 본원 8계(02-2192-1338)
부동산
부동산강제경매
매각
진행중
| 소재지 |
-
(서울특별시 강서구 방화동 249-303)
|
|---|---|
| 물건종류 | 근린상가 |
| 면적 |
토지: 20.96㎡ (6.34평)
건물: 45.52㎡ (13.77평)
|
| 현재 위치 | 서울특별시 강서구 방화동 249-303 |
| 소유자 / 채무자 | 김수홍 / 김수홍 |
| 채권자 | 김현중 |
| 배당종기일 | 2025-07-30 |
감정가
343,000,000
최저가
219,520,000
보증금
21,952,000
진행 상태 / 매각 결과
매각
completed = false
매각허가결정
| 상태 코드 | 2 | 상태 텍스트 | 매각허가결정 |
|---|---|---|---|
| 매각가 | 220,000,000원 | 매각가율 | 0% |
| 입찰 수 | 1 | 매수인 | 한국토지주택공사 |
| 차순위 입찰가 | 0원 | 매각허가 결정 | 매각허가결정 |
| 매각허가 결정일 | 2026-04-22 | 대금 지급기한 | - |
| 대금 지급상태 | - | 배당기일 | - |
| 배당 종결일 | - | 다음 확인 예정 | 2026-04-29 09:00 |
입찰 진행 내역
| 회차/구분 | 입찰기일 | 최저매각가격 | 결과 |
|---|---|---|---|
| (진행) | 2025-11-25 | 343,000,000 | 변경 |
| 1차 (진행) | 2026-01-20 | 343,000,000 | 유찰 |
| 2차 (진행) | 2026-03-10 | 274,400,000 | 유찰 |
| 3차 (진행) | 2026-04-15 | 219,520,000 |
진행 메모
매각 : 220,000,000 원 (64.14%)
(입찰 1 명,매수인:한국토지주택공사)
매각결정기일 : 2026.04.22 - 매각허가결정
임차인 현황
| 임차인명 | 점유여부 | 전입/확정/배당 | 보증금 / 차임 | 예상배당액 | 대항력 |
|---|---|---|---|---|---|
| 김현중 | 주거용 전부 |
전입: 2018-11-30
확정: 2018-11-07 배당: 2023-09-13 |
230,000,000
월 0
|
0 | 있음 |
매각물건 현황
| 구분 | 순번 | 소재지 | 용도/구조/면적 | 감정가 | 비고 |
|---|---|---|---|---|---|
| 건물 | 8층중 3층 | 16.06.17 | 45.52㎡(13.77평) / 주거용 | 102,900,000 |
현황 및 위치
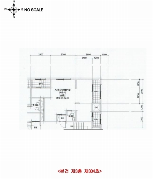
* 본건은 서울특별시 강서구 방화동 소재 "서울방화초등학교" 북동측 인근에 위치하는 "다안빌라트" 제3층 제304호로서, 인근은 다세대주택, 오피스텔, 소규모 아파트 및 근린생활시설 등이 혼재하는 지역으로 제반 주위환경은 보통임. * 본건까지 차량의 진출입이 가능하며, 인근에 노선버스정류장 및 지하철 9호선 "신방화역"이 소재하는 등 교통상황은 보통임. * 2필지 일단의 대체로 등고 평탄한 부정형 토지로서 도시형생활주택(단지형 다세대) 건부지로 이용중임. * 본건 북측으로 노폭 약 8미터 내외의 포장도로에 접함.
참고사항
* 외필지 :방화동249-306 * 본건 건물의 층별 표시 중 옥탑 1층 부분은 등기사항증명서(표시 옥탑 1층 18.14㎡, 옥탑 1층 18.14㎡)와 집합건축물대장(표시 옥탑 1층 18.14㎡)이 서로 상이함 * 공부상 제2종근린생활시설(사무소)이나 현황은 다세대주택으로 이용중임 ▶ 본 물건은 공부상과 현황상 물건 상태가 다르니 확인하시고 입찰하시기 바랍니다.
등기부 현황
건물
| 순위 | 접수일자 | 권리종류 | 권리자 | 채권금액 | 소멸여부 | 비고 |
|---|---|---|---|---|---|---|
| 1(갑4) | 2017-08-04 | 공유자전원지분전부이전 | 김OO | 0 | 매매 | |
| 2(갑5) | 2021-04-23 | 가압류 | 김OO | 40,000,000 | 소멸 | 말소기준등기2021카단201613 |
| 3(갑6) | 2022-07-26 | 가압류 | 주OOOOOOO | 732,000,000 | 소멸 | 2022카단103442 |
| 4(갑7) | 2023-01-13 | 압류 | 강OOOOOOOOO | 0 | 소멸 | |
| 5(을1) | 2023-09-13 | 주택임차권(전부) | 김OO | 230,000,000 | 전입:2018.11.30확정:2018.11.07보: 금230,000,000원(2021년3월29일금1천만 원 증액), 확: 2018년11월7일(금220,000,000원) | |
| 6(갑8) | 2025-04-29 | 강제경매 | 김OO | 230,000,000 | 소멸 | 2025타경9755 |
| 7(갑9) | 2025-08-18 | 압류 | 국OOOOOOOO | 0 | 소멸 |
관련 문서 (PDF)
클릭하면 원본 파일이 열립니다