목록으로
최종 업데이트: 2026-04-25 05:32
2025타경41277
수원지방법원 평택지원 3계(031-650-3167)
부동산
부동산임의경매
취하/변경
진행중
| 소재지 |
경기도 평택시 안중읍 송담9길 114
(경기도 평택시 안중읍 안중리 449-4)
|
|---|---|
| 물건종류 | 근린주택 |
| 면적 |
토지: 0.00㎡ (0평)
건물: 837.69㎡ (253.4평)
|
| 현재 위치 | 경기도 평택시 안중읍 송담9길 114 |
| 소유자 / 채무자 | 김민정의 파산관재인 변호사 배상운 / 김민정의 파산관재인 변호사 배상운 |
| 채권자 | 농협자산관리회사 |
| 배당종기일 | 2025-05-07 |
감정가
2,213,830,380
최저가
1,084,776,880
보증금
108,477,700
입찰 진행 내역
| 회차/구분 | 입찰기일 | 최저매각가격 | 결과 |
|---|---|---|---|
| 1차 (진행) | 2025-12-22 | 2,213,830,380 | 유찰 |
| 2차 (진행) | 2026-02-23 | 1,549,681,260 | 유찰 |
| (진행) | 2026-03-30 | 1,084,776,880 | 변경 |
진행 메모
본사건은 변경 되었으며 현재 매각기일이 지정되지 않았습니다.
임차인 현황
| 임차인명 | 점유여부 | 전입/확정/배당 | 보증금 / 차임 | 예상배당액 | 대항력 |
|---|---|---|---|---|---|
| (주)다경기업 | 주거용 302호/ 202호 |
전입: 2024-04-17
확정: 2023-10-12 배당: 2024-04-22 |
5,000,000
월 500,000
|
0 | 없음 |
| CUISHUNDE | 주거용 203호 |
전입: 2022-10-25
확정: - 배당: - |
0
월 0
|
0 | 없음 |
| CUIZHELONG | 주거용 203호 |
전입: 2024-05-13
확정: - 배당: - |
0
월 0
|
0 | 없음 |
| QUANHONGLIAN | 주거용 203호 |
전입: 2022-10-25
확정: - 배당: - |
0
월 0
|
0 | 없음 |
| QUANLONGZHU | 주거용 203호 |
전입: 2022-10-25
확정: - 배당: - |
0
월 0
|
0 | 없음 |
| QUANYULIN(최순덕) | 주거용 203호 |
전입: 2022-10-25
확정: 2022-10-17 배당: 2025-03-14 |
190,000,000
월 0
|
0 | 없음 |
| 김가실 | 주거용 304호 |
전입: 2024-04-17
확정: 2024-04-17 배당: 2025-04-22 |
10,000,000
월 600,000
|
0 | 없음 |
| 김도완 | 주거용 303호 |
전입: 2022-10-17
확정: 2022-10-14 배당: 2025-03-10 |
190,000,000
월 0
|
0 | 없음 |
| 김병주 | 주거용 301호 |
전입: 2024-04-23
확정: - 배당: - |
0
월 0
|
0 | 없음 |
| 김성균 | 주거용 302호 |
전입: 2024-04-17
확정: - 배당: - |
0
월 0
|
0 | 없음 |
| 세일기계설비(주) | 주거용 301호 |
전입: 2024-04-23
확정: 2022-10-20 배당: 2025-04-22 |
10,000,000
월 1,000,000
|
0 | 없음 |
| 이민주 | 주거용 204호 |
전입: 2024-04-23
확정: 2023-10-12 배당: 2025-03-10 |
30,000,000
월 350,000
|
0 | 없음 |
| 장경철 | 주거용 202호 |
전입: 2024-04-17
확정: - 배당: - |
0
월 0
|
0 | 없음 |
| 최원종 | 점포 101호 |
전입: -
확정: - 배당: - |
10,000,000
월 1,000,000
|
0 | - |
매각물건 현황
| 구분 | 순번 | 소재지 | 용도/구조/면적 | 감정가 | 비고 |
|---|---|---|---|---|---|
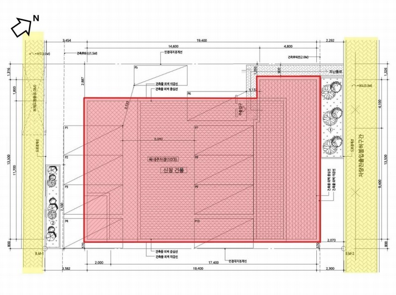
| 토지 | 토지 | 안중리 449-4 | 토지거래계약에관한허가구역,제1종일반주거지역,지구단위계획구역,가축사육제한구역 / 대 393.9㎡ (119.15평) | 2,657,000 | 1,046,592,300원 |
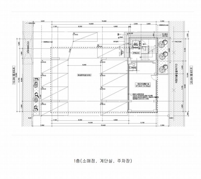
| 건물 | 1 | 송담9길 114 [안중리 449-4]철근콘크리트구조 기타지붕 | 1층 / 소매점 | 38 | 864,000원 |
| 2 | 1층 | 소매점 | 19.83㎡(6평) / 864,000원 | 17,133,120 | * 사용승인:2022.10.05 |
| 3 | 1층 | 소매점 | 9.69㎡(2.93평) / 864,000원 | 8,372,160 | * 사용승인:2022.10.05 |
| 4 | 2층 | 다가구주택 | 214.72㎡(64.95평) / 1,440,000원 | 309,196,800 | * 사용승인:2022.10.05 |
| 5 | 3층 | 다가구주택 | 214.72㎡(64.95평) / 1,440,000원 | 309,196,800 | * 사용승인:2022.10.05 |
| 6 | 4층 | 다가구주택 | 198.91㎡(60.17평) / 1,440,000원 | 286,430,400 | * 사용승인:2022.10.05 |
| 7 | 옥탑 | 다가구주택 | 141.57㎡(42.82평) / 1,440,000원 | 203,860,800 | * 사용승인:2022.10.05* 옥탑1층 |
현황 및 위치
* 본건은 경기도 평택시 안중읍 안중리 소재 "안중읍 행정복지센터" 남동측 인근에 위치하며, 주위는 단독주택, 다세대주택, 근린생활시설, 농경지 등이 혼재하는 지역임. * 본건까지 제반 차량의 진출입이 가능하고 인근에 노선버스정류장이 소재하는 등 제반 교통상황은 보통임. * 인접도로 대비 등고평탄한 세장형의 토지로서, 주상용 건부지로 이용 중임. * 본건 북동측으로 폭 약 20미터 내외의 도로, 남서측으로 폭 약 10미터 내외의 도로와 접하고 있음.
참고사항
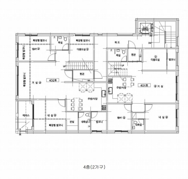
* 일괄매각. ☞현황서상 내용:부동산의 표시상 4층 소매점이라고 되어 있으나, 현황은 1층에 점포가 1개 있고, 주거용으로 2층에 4개호실, 3층에 4개호실, 4층에 2개호실이 있음. 건물에 `노을`이라고 표시되어 있음.
전문가 코멘트
☞ 임차인 (주)다경기업,세일기계설비(주)가 중소기업기본법 제2조에 따른 중소기업에 해당하는 법인인 경우 소속 직원의 주거용으로 주택을 임차한 후 그 법인이 선정한 직원이 해당 주택을 인도받고 주민등록을 마쳤을 때(임대차가 끝나기 전에 그 직원이 변경된 경우에는 그 법인이 선정한 새로운 직원이 주택을 인도받고 주민등록을 마친 때) 다음날부터 대항력이 인정됩니다.
등기부 현황
건물
| 순위 | 접수일자 | 권리종류 | 권리자 | 채권금액 | 소멸여부 | 비고 |
|---|---|---|---|---|---|---|
| 1(갑1) | 2022-10-12 | 소유권보존 | 김OO | 0 | ||
| 2(을1) | 2022-10-12 | 근저당 | 농OOOOOOO | 1,284,000,000 | 소멸 | 말소기준등기확정채권양도 전:아산원예농업협동조합 |
| 3(갑10) | 2025-02-06 | 임의경매 | 농OOOOOOOOOOOOOOO | 1,157,582,460 | 소멸 | 2025타경41277 |
관련 문서 (PDF)
클릭하면 원본 파일이 열립니다