목록으로
최종 업데이트: 2026-04-22 23:48
2025타경10704
서울남부지방법원 본원 8계(02-2192-1338)
부동산
부동산강제경매
매각
진행중
| 소재지 |
서울특별시 구로구 고척로52길 124, 에스케이팰레스 6층 602호
(서울특별시 구로구 개봉동 153-62)
|
|---|---|
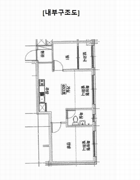
| 물건종류 | 다세대(빌라)[공급10평형] |
| 면적 |
토지: 17.74㎡ (5.37평)
건물: 29.08㎡ (8.8평)
|
| 현재 위치 | 서울특별시 구로구 고척로52길 124, 에스케이팰레스 6층 602호 |
| 소유자 / 채무자 | (주)대신코리아 / (주)대신코리아 |
| 채권자 | 양현수 |
| 배당종기일 | 2025-10-10 |
감정가
212,000,000
최저가
169,600,000
보증금
16,960,000
진행 상태 / 매각 결과
매각
completed = false
매각허가결정
| 상태 코드 | 2 | 상태 텍스트 | 매각허가결정 |
|---|---|---|---|
| 매각가 | 180,000,000원 | 매각가율 | 0% |
| 입찰 수 | 1 | 매수인 | 구로구 양현수 |
| 차순위 입찰가 | 0원 | 매각허가 결정 | 매각허가결정 |
| 매각허가 결정일 | 2026-03-17 | 대금 지급기한 | - |
| 대금 지급상태 | - | 배당기일 | 2026-04-29 |
| 배당 종결일 | - | 다음 확인 예정 | 2026-04-23 09:00 |
입찰 진행 내역
| 회차/구분 | 입찰기일 | 최저매각가격 | 결과 |
|---|---|---|---|
| 1차 (진행) | 2026-01-20 | 212,000,000 | 유찰 |
| 2차 (진행) | 2026-03-10 | 169,600,000 |
진행 메모
매각 : 180,000,000 원 (84.91%)
(입찰 1 명,매수인:구로구 양현수)
매각결정기일 : 2026.03.17 - 매각허가결정
대금지급기한 : 2026.04.29
배당기일 : 2026.04.29
임차인 현황
| 임차인명 | 점유여부 | 전입/확정/배당 | 보증금 / 차임 | 예상배당액 | 대항력 |
|---|---|---|---|---|---|
| 양현수 | 주거용 전부 |
전입: 2019-08-09
확정: 2019-06-25 배당: 2025-06-27 |
180,000,000
월 0
|
0 | 있음 |
매각물건 현황
| 구분 | 순번 | 소재지 | 용도/구조/면적 | 감정가 | 비고 |
|---|---|---|---|---|---|
| 건물 | 6층중 6층 | 18.02.27 | 29.08㎡(8.8평)[공급10평] / 도시형생활주택(단지형다세대) | 63,600,000 |
현황 및 위치
* 본건은 서울특별시 구로구 개봉동 소재 ""경인중학교"" 북동측 인근에 위치하며, 주위는 다세대주택, 연립주택, 아파트, 근린생활시설 등이 혼재된 지역임. * 본건까지 제반 차량 접근이 가능하며, 인근에 버스정류장이 소재하는 등 제반 대중교통상황은 보통시됨. * 본건은 2필지 일단의 가장형 토지로서, 주거용 건부지로 이용 중임. * 본건은 동측으로 세로에 접하고 있음.
참고사항
* 외필지 : 개봉동 153-63
등기부 현황
건물
| 순위 | 접수일자 | 권리종류 | 권리자 | 채권금액 | 소멸여부 | 비고 |
|---|---|---|---|---|---|---|
| 1(갑2) | 2018-06-20 | 소유권이전(매매) | (OOOOOOO | 0 | ||
| 2(갑3) | 2020-08-12 | 가압류 | 주OOOOOOOOOOOOOOOOO | 2,733,000,000 | 소멸 | 말소기준등기2020카단103110 |
| 3(갑4) | 2020-10-08 | 압류 | 구OOOOOOOOO | 0 | 소멸 | |
| 4(갑5) | 2021-01-25 | 압류 | 강OOOOOOOOO | 0 | 소멸 | |
| 5(갑6) | 2025-07-03 | 강제경매 | 양OO | 180,000,000 | 소멸 | |
| 6(갑7) | 2025-07-10 | 압류 | 국OOOOOOO | 0 | 소멸 |
관련 문서 (PDF)
클릭하면 원본 파일이 열립니다