목록으로
최종 업데이트: 2026-04-22 13:21
2025타경41642
수원지방법원 평택지원 3계(031-650-3167)
부동산
부동산임의경매
유찰
진행중
| 소재지 |
-
(경기도 안성시 죽산면 죽산리 561-7)
|
|---|---|
| 물건종류 | 근린주택 |
| 면적 |
토지: 0.00㎡ (0평)
건물: 1043.37㎡ (315.62평)
|
| 현재 위치 | 경기도 안성시 죽산면 죽산리 561-7 |
| 소유자 / 채무자 | (주)소망외 3명 / (주)소망 |
| 채권자 | 순천시산림조합 |
| 배당종기일 | 2025-12-08 |
감정가
1,047,765,200
최저가
513,404,940
보증금
51,340,500
입찰 진행 내역
| 회차/구분 | 입찰기일 | 최저매각가격 | 결과 |
|---|---|---|---|
| 1차 (진행) | 2026-02-23 | 1,047,765,200 | 유찰 |
| 2차 (진행) | 2026-03-30 | 733,435,640 | 유찰 |
| 3차 (진행) | 2026-05-11 | 513,404,940 | |
| 4차 (진행) | 2026-06-22 | 359,383,450 |
임차인 현황
| 임차인명 | 점유여부 | 전입/확정/배당 | 보증금 / 차임 | 예상배당액 | 대항력 |
|---|---|---|---|---|---|
| ZHENGRONGSHI | 주거및영업용 미상 |
전입: 2020-05-17
확정: - 배당: - |
0
월 0
|
0 | - |
| 김경덕 | 주거및영업용 미상 |
전입: 2017-06-28
확정: - 배당: - |
0
월 0
|
0 | - |
| 김성완 | 주거및영업용 미상 |
전입: 2023-05-02
확정: - 배당: - |
0
월 0
|
0 | 없음 |
| 박춘배 | 주거및영업용 미상 |
전입: 2023-07-06
확정: - 배당: - |
0
월 0
|
0 | 없음 |
| 서수호 | 주거용 1층 108호 |
전입: 2022-09-26
확정: 2022-09-30 배당: 2025-05-01 |
25,000,000
월 0
|
0 | 없음 |
| 이성실 | 주거용 101호 |
전입: 2023-05-01
확정: - 배당: 2025-06-16 |
3,000,000
월 350,000
|
0 | 없음 |
| 이성실. | 주거용 102호 |
전입: 2023-05-01
확정: - 배당: 2025-06-16 |
1,000,000
월 300,000
|
0 | 없음 |
| 장광은 | 주거용 3층 일부 180㎡ |
전입: 2022-08-25
확정: 2022-08-25 배당: 2025-12-04 |
70,000,000
월 0
|
0 | 없음 |
| 정광윤 | 주거용 2층 전부 |
전입: 2022-08-30
확정: 2022-07-21 배당: 2025-05-09 |
25,000,000
월 600,000
|
0 | 없음 |
| 주시회사주형(함형우) | 주거및영업용 미상 |
전입: 2021-11-01
확정: - 배당: - |
2,000,000
월 250,000
|
0 | 있음 |
| 최상면 | 주거및영업용 미상 |
전입: 2023-06-07
확정: - 배당: - |
0
월 0
|
0 | 없음 |
매각물건 현황
| 구분 | 순번 | 소재지 | 용도/구조/면적 | 감정가 | 비고 |
|---|---|---|---|---|---|
| 토지 | 토지 | 1 | 죽산리 561-7 / 배출시설설치제한지역,도시지역,토지거래계약에관한허가구역,가축사육...배출시설설치제한지역,도시지역,토지거래계약에관한허가구역,가축사육제한구역,자연보전권역,제1종일반주거지역 | 463 | 710,000원(305,000원) |
| 토지 | 2 | 죽산리 561-9 | 배출시설설치제한지역,도시지역,토지거래계약에관한허가구역,가축사육...배출시설설치제한지역,도시지역,토지거래계약에관한허가구역,가축사육제한구역,자연보전권역,제1종일반주거지역 / 답 114㎡ (34.49평) | 463,000 | 52,782,000원 |
| 토지 | 3 | 죽산리 561-10 | 배출시설설치제한지역,도시지역,토지거래계약에관한허가구역,가축사육...배출시설설치제한지역,도시지역,토지거래계약에관한허가구역,가축사육제한구역,자연보전권역,제1종일반주거지역 / 답 148㎡ (44.77평) | 463,000 | 68,524,000원 |
| 토지 | 4 | 죽산리 561-11 | 배출시설설치제한지역,도시지역,토지거래계약에관한허가구역,가축사육...배출시설설치제한지역,도시지역,토지거래계약에관한허가구역,가축사육제한구역,자연보전권역,제1종일반주거지역 / 답 60㎡ (18.15평) | 463,000 | 27,780,000원 |
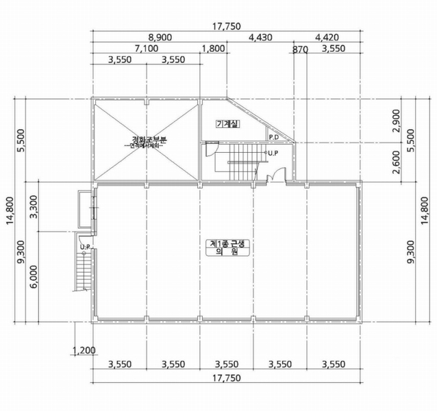
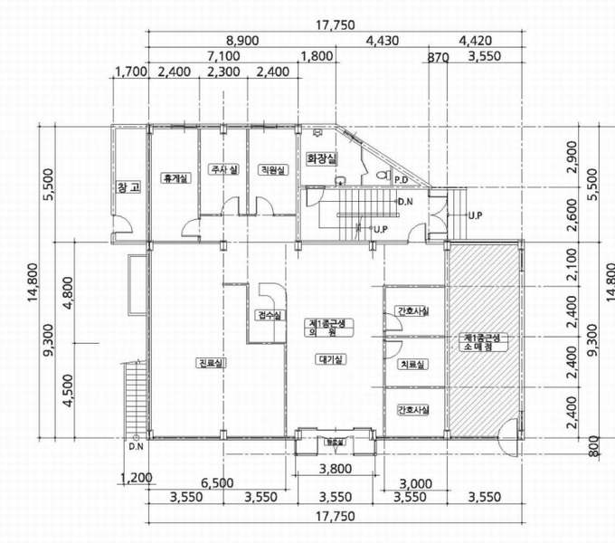
| 건물 | 1 | 죽주로 205-7 [죽산리 561-7]철골철근콘크리트구조 슬라브지붕 | 지하1층 / 현황 일부 기계실 및 공실 상태 | 200 | 460,000원 |
| 2 | 1층 | 사무실 및 다문화센터 등 | 105.67㎡(31.97평) / 552,000원 | 58,329,840 | * 사용승인:1998.01.19 |
| 3 | 1층 | 사무실 및 다문화센터 등 | 105.67㎡(31.97평) / 552,000원 | 58,329,840 | * 사용승인:1998.01.19 |
| 4 | 1층 | 사무실 및 다문화센터 등 | 33.01㎡(9.99평) / 552,000원 | 18,221,520 | * 사용승인:1998.01.19 |
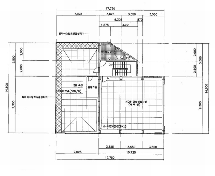
| 5 | 2층 | 교회 등 | 231.96㎡(70.17평) / 552,000원 | 128,041,920 | * 사용승인:1998.01.19 |
| 6 | 3층 | 교회, 주택(추정) 등 | 231.96㎡(70.17평) / 552,000원 | 128,041,920 | * 사용승인:1998.01.19 |
| 7 | 4층 | 주택(추정) 등 | 134.99㎡(40.83평) / 644,000원 | 86,933,560 | * 사용승인:1998.01.19 |
현황 및 위치
* 본건은 경기도 안성시 죽산면 죽산리 소재 "죽산초등학교" 남서측 인근에 위치하며, 주위는 단독주택, 다세대주택, 근린생활시설, 농경지 등이 혼재하는 지역임. * 본건 및 본건 인근까지 차량진출입이 가능하고 인근에 노선버스정류장이 소재하는 등 제반 대중교통이용사정은 보통임. * 1) 부정형 평지이고, 주상용 건부지임. 2-4) 부정형 평지이고, 나지 상태임. * 1) 동측으로 노폭 약 4미터의 도로에 접함. 2-4) 지적도상 맹지임.
참고사항
* 일괄매각. * 토2-4)공부상 지목은 "답"이나, 현황은 "나지"상태임.
전문가 코멘트
☞ 임차인(서수호,이성실,이성실.,장광은)은 임차 목적물을 주거 및 상가 겸용으로 사용하여 주택임대차보호법 규정을 적용받는다는 가정으로 분석하였으며, 건물의 구조와 형태, 이용관계, 임대차 목적 등에 따라 법 적용 여부가 달라질 수 있습니다.
등기부 현황
건물
| 순위 | 접수일자 | 권리종류 | 권리자 | 채권금액 | 소멸여부 | 비고 |
|---|---|---|---|---|---|---|
| 1(갑2) | 2006-05-29 | 소유권이전(매매) | 하OO | 0 | ||
| 5(을16) | 2022-07-08 | 근저당 | 순OOOOOO | 325,000,000 | 소멸 | 말소기준등기 |
| 6(갑25) | 2023-05-24 | 송상영지분전부이전 | 정OO | 0 | 매매, 1/4 | |
| 7(갑26) | 2024-11-22 | (주)소망지분압류 | 안OO | 0 | 소멸 | |
| 8(갑27) | 2025-03-28 | 정문철지분전부이전 | 정OO | 0 | 상속, 1/4 | |
| 9(갑28) | 2025-04-02 | 임의경매 | 순OOOOOO | 267,101,133 | 소멸 | 2025타경41642 |
| 10(갑29) | 2025-10-24 | 정형서지분압류 | 안OO | 0 | 소멸 |
관련 문서 (PDF)
클릭하면 원본 파일이 열립니다