목록으로
최종 업데이트: 2026-04-26 12:54
2025타경654
수원지방법원 안산지원 6계(031-481-1192)
부동산
부동산임의경매
유찰
진행중
| 소재지 |
경기도 시흥시 매화우회로 63, 금강아파트 101동 5층 505호
(경기도 시흥시 매화동 361-6)
|
|---|---|
| 물건종류 | 아파트[공급23평형] |
| 면적 |
토지: 25.70㎡ (7.77평)
건물: 55.74㎡ (16.86평)
|
| 현재 위치 | 경기도 시흥시 매화우회로 63, 금강아파트 101동 5층 505호 |
| 소유자 / 채무자 | 파산채무자 이현주의 파산관재인 변호사 강승호 / 파산채무자 이현주의 파산관재인 변호사 강승호 |
| 채권자 | 더블유에이치케이엔2506유동화전문유한회사(하나은행의 양수인) |
| 배당종기일 | 2025-09-01 |
감정가
213,000,000
최저가
104,370,000
보증금
10,437,000
입찰 진행 내역
| 회차/구분 | 입찰기일 | 최저매각가격 | 결과 |
|---|---|---|---|
| 1차 (진행) | 2026-02-24 | 213,000,000 | 유찰 |
| 2차 (진행) | 2026-04-07 | 149,100,000 | 유찰 |
| 3차 (진행) | 2026-05-19 | 104,370,000 | |
| 4차 (진행) | 2026-06-30 | 73,059,000 |
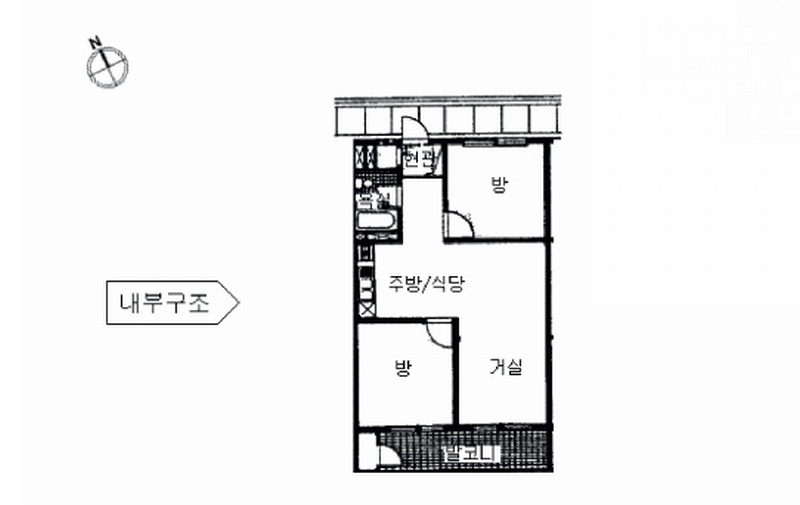
매각물건 현황
| 구분 | 순번 | 소재지 | 용도/구조/면적 | 감정가 | 비고 |
|---|---|---|---|---|---|
| 건물 | 12층중 5층 | 94.12.31 | 55.735㎡(16.86평)[공급23평] / 주거용 | 63,900,000 | * 개별난방설비 |
현황 및 위치
* 경기도 시흥시 매화동 소재 "매화초등학교"북동측 인근에 위치하며 주위는 아파트단지 및 다세대주택 등이 소재하는 일반주거지대임. * 본단지까지 차량출입이 가능하고 인근에 버스정류장이 소재하여 대중교통사정은 무난한편임. * 사각형의 평탄한 토지로서 아파트 건부지로 이용중임. * 노폭 6미터 포장도로에 4면이 접하여 제반 차량출입이 자유로운 상태임.
전문가 코멘트
☞ 미납관리비의 경우 사용자 부담이 원칙이나 사용자가 납부하지 않은 경우 공용부분 관리비는 대법원판례(2001다8677 전원합의체)에 따라서 매수인에게 승계됩니다. 관리비채권의 법적 소멸시효는 3년이며 미납관리비의 연체료나 관리사무소에서 임의적으로 계산한 지연손해금등이 매수자에게 승계되지 않습니다. 위 사항을 참고하여 관리사무소와 협의하여 처리하시기 바랍니다.
등기부 현황
건물
| 순위 | 접수일자 | 권리종류 | 권리자 | 채권금액 | 소멸여부 | 비고 |
|---|---|---|---|---|---|---|
| 1(갑13) | 2023-10-23 | 소유권이전(매매) | 이OO | 0 | 거래가액:210,000,000 | |
| 2(을16) | 2023-10-23 | 근저당 | 하OOOOOOOOOOOOO | 161,700,000 | 소멸 | 말소기준등기 |
| 3(을21) | 2024-01-31 | 근저당 | 김OO | 30,000,000 | 소멸 | |
| 4(갑14) | 2024-04-04 | 가압류 | 근OOOOO | 7,259,510 | 소멸 | 2024카단51386 |
| 5(갑15) | 2024-10-23 | 가압류 | 경OOOOOOO | 10,196,228 | 소멸 | 2024카단510910 |
| 6(갑16) | 2024-12-18 | 가압류 | 토OOOOOO | 25,898,854 | 소멸 | 2024카단55755 |
| 7(갑17) | 2024-12-27 | 가압류 | 신OOOOO | 14,250,005 | 소멸 | 2024카단55806 |
| 8(갑18) | 2025-01-17 | 가압류 | 서OOOOOOOO | 25,008,210 | 소멸 | 2025카단50165 |
| 9(갑19) | 2025-06-12 | 임의경매 | 하OOOOOOOOOO | 154,999,342 | 소멸 | 2025타경654 |
| 10(갑20) | 2025-10-10 | 압류 | 부OO | 0 | 소멸 |
관련 문서 (PDF)
클릭하면 원본 파일이 열립니다