목록으로
최종 업데이트: 2026-04-26 12:58
2025타경40767
수원지방법원 평택지원 5계(031-650-3154)
부동산
부동산강제경매
취하/변경
진행중
| 소재지 |
-
(경기도 평택시 고덕면 동청리 39-1)
|
|---|---|
| 물건종류 | 근린주택 |
| 면적 |
토지: 0.00㎡ (0평)
건물: 258.72㎡ (78.26평)
|
| 현재 위치 | 경기도 평택시 고덕면 동청리 39-1 |
| 소유자 / 채무자 | 남○○ / 남○○ |
| 채권자 | 김○○ |
| 배당종기일 | 2025-05-07 |
감정가
729,377,200
최저가
357,394,828
보증금
35,739,500
입찰 진행 내역
| 회차/구분 | 입찰기일 | 최저매각가격 | 결과 |
|---|---|---|---|
| 1차 (진행) | 2026-01-20 | 729,377,200 | 유찰 |
| 2차 (진행) | 2026-02-24 | 510,564,040 | 유찰 |
| (진행) | 2026-04-07 | 357,394,828 | 기각 |
진행 메모
본사건은 기각(으)로 경매절차가 종결되었습니다.
임차인 현황
| 임차인명 | 점유여부 | 전입/확정/배당 | 보증금 / 차임 | 예상배당액 | 대항력 |
|---|---|---|---|---|---|
| 김○○ | 주거용 202호 전부(방2칸) |
전입: -
확정: - 배당: 2025-05-02 |
2,000,000
월 650,000
|
0 | - |
| 김○○ | 주거용 3층 302호 |
전입: 2024-02-05
확정: 2024-02-05 배당: 2025-04-02 |
10,000,000
월 500,000
|
0 | 없음 |
| 유○○ | 주거용 미상 |
전입: 2017-05-25
확정: - 배당: - |
0
월 0
|
0 | 없음 |
| 이○○ | 점포 1층 93제곱미터 |
전입: -
확정: - 배당: - |
10,000,000
월 650,000
|
0 | 없음 |
| 이○○ | 주거용 302호 |
전입: 2016-06-09
확정: - 배당: - |
0
월 0
|
0 | 없음 |
매각물건 현황
| 구분 | 순번 | 소재지 | 용도/구조/면적 | 감정가 | 비고 |
|---|---|---|---|---|---|
| 토지 | 토지 | 동청리 39-1동○○ | 비행안전제6구역(전술),토지거래계약에관한허가구역,자연취락지구,가...비행안전제6구역(전술),토지거래계약에관한허가구역,자연취락지구,가축사육제한구역,계획관리지역 / 대 248㎡ (75.02평) | 1,490,000 | 369,520,000원 |
| 건물 | 1 | 청원로 691 [동청리 39-1 제1동호]청○○철근콘크리트구조 철근콘크리트지붕 | 1층 / 소매점 | 93 | 1,260,000원 |
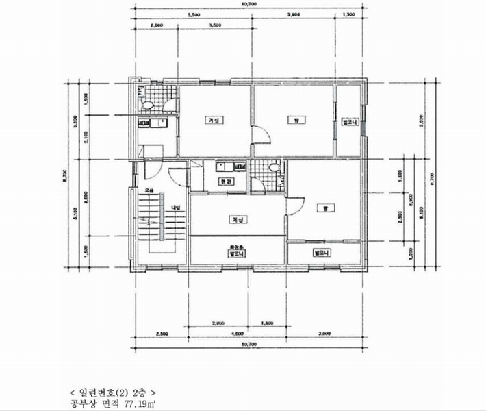
| 2 | 2층 | 주택(2가구) | 77.19㎡(23.35평) / 1,510,000원 | 116,556,900 | * 사용승인:2016.02.22 |
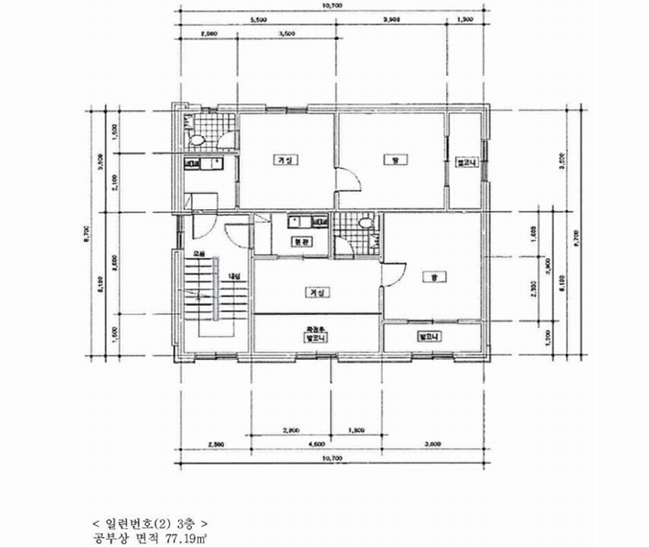
| 3 | 3층 | 주택(2가구) | 77.19㎡(23.35평) / 1,510,000원 | 116,556,900 | * 사용승인:2016.02.22 |
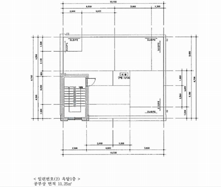
| 4 | 옥탑 | 계단실 | 11.25㎡(3.4평) / 840,000원 | 9,450,000 | * 사용승인:2016.02.22* 옥탑1층 |
현황 및 위치
* 본건은 경기도 평택시 고덕면 동청리 소재 "동청1리경로당" 남동측 인근에 위치하며, 인근은 단독주택 및 다가구주택, 근린생활시설, 공장, 농경지(전,답) 등이 혼재하는 지역임. * 본건까지 차량접근이 가능하며, 인근에 버스정류장이 소재하는등 대중교통 이용여건은 보통임. * 사다리 평지의 토지로서 현황 ""주상용건부지""로 이용중임. * 남측으로 로폭 8m 내외의 포장도로와 접함.
참고사항
* 일괄매각 * 근린 및 다가구주택(4가구) 1층 점포는 내부에 에어컨, 소파, 의자 등이 있으나 거의 공실사태임. * "모던 청소"간판이 있음.
등기부 현황
건물
| 순위 | 접수일자 | 권리종류 | 권리자 | 채권금액 | 소멸여부 | 비고 |
|---|---|---|---|---|---|---|
| 1(갑1) | 2016-02-25 | 소유권보존 | 남OO | 0 | ||
| 2(을1) | 2016-02-25 | 근저당 | 충OOOOO | 338,000,000 | 소멸 | 말소기준등기 |
| 3(을2) | 2020-04-24 | 근저당 | 충OOOOO | 96,000,000 | 소멸 | |
| 4(갑2) | 2025-01-21 | 강제경매 | 김OO | 10,841,643 | 소멸 | 2025타경40767 |
| 5(을3) | 2025-08-21 | 주택임차권(3층 302호) | 김OO | 10,000,000 | 소멸 | 전입:2024.02.05확정:2024.02.05차:500,000원 |
관련 문서 (PDF)
클릭하면 원본 파일이 열립니다