목록으로
최종 업데이트: 2026-04-22 16:26
2025타경51744
수원지방법원 안산지원 11계(031-481-1248)
부동산
부동산임의경매
매각
진행중
| 소재지 |
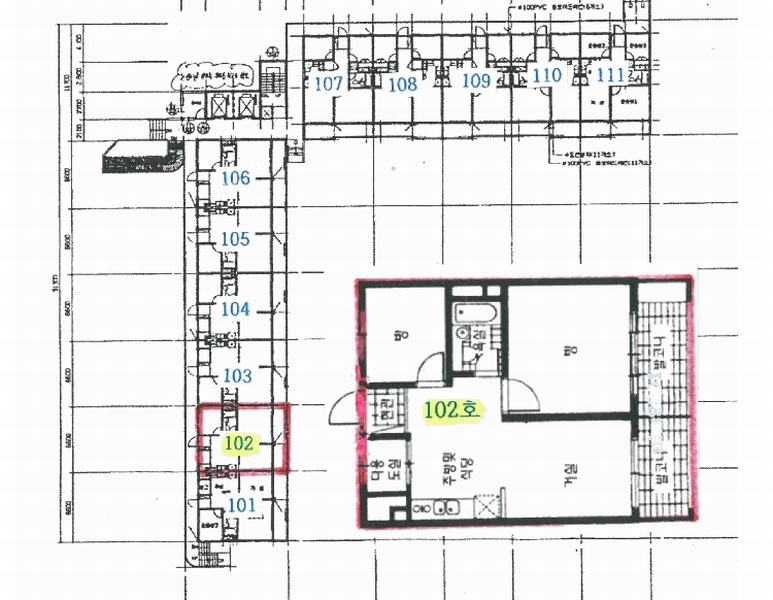
경기도 시흥시 은행로 267, 신명아파트 101동 1층 102호
(경기도 시흥시 은행동 538-1)
|
|---|---|
| 물건종류 | 아파트[공급19평형] |
| 면적 |
토지: 23.25㎡ (7.03평)
건물: 48.84㎡ (14.77평)
|
| 현재 위치 | 경기도 시흥시 은행로 267, 신명아파트 101동 1층 102호 |
| 소유자 / 채무자 | 박기태 / 박기태 |
| 채권자 | (주)초록자산대부 |
| 배당종기일 | 2025-05-12 |
감정가
209,000,000
최저가
146,300,000
보증금
14,630,000
진행 상태 / 매각 결과
매각
completed = false
매각허가결정
| 상태 코드 | 2 | 상태 텍스트 | 매각허가결정 |
|---|---|---|---|
| 매각가 | 178,900,000원 | 매각가율 | 0% |
| 입찰 수 | 8 | 매수인 | 이예빈 |
| 차순위 입찰가 | 176,600,000원 | 매각허가 결정 | 매각허가결정 |
| 매각허가 결정일 | 2026-03-11 | 대금 지급기한 | - |
| 대금 지급상태 | - | 배당기일 | - |
| 배당 종결일 | - | 다음 확인 예정 | 2026-04-23 09:00 |
입찰 진행 내역
| 회차/구분 | 입찰기일 | 최저매각가격 | 결과 |
|---|---|---|---|
| 1차 (진행) | 2026-01-21 | 209,000,000 | 유찰 |
| 2차 (진행) | 2026-03-04 | 146,300,000 |
진행 메모
매각 : 178,900,000 원 (85.6%)
(입찰 8 명,매수인:이예빈 / 차순위금액 176,600,000원)
매각결정기일 : 2026.03.11 - 매각허가결정
대금지급기한 : 2026.04.24
대금납부 2026.04.03 / 배당기일 2026.04.29
매각물건 현황
| 구분 | 순번 | 소재지 | 용도/구조/면적 | 감정가 | 비고 |
|---|---|---|---|---|---|
| 건물 | 20층중 1층 | 95.10.06 | 48.84㎡(14.77평)[공급19평] / 주거용 | 125,400,000 |
현황 및 위치
* 본건은 경기도 시흥시 은행동 소재 "은행초등학교" 북서측 인근에 위치하며, 주위는 아파트 단지, 근린생활시설, 각급학교 등이 소재하는 지역으로 제반 주위환경은 무난함. * 본건단지까지 차량접근이 가능하며, 인근에 노선버스정류장이 소재하는 등 일반 교통사성은 보통시됨. * 부정형의 광평수 평지로 아파트 건부지로 이용 중임. * 단지내 포장도로 정비되어 있고, 외곽 공도와 연계되어 있음.
전문가 코멘트
☞ 미납관리비의 경우 사용자 부담이 원칙이나 사용자가 납부하지 않은 경우 공용부분 관리비는 대법원판례(2001다8677 전원합의체)에 따라서 매수인에게 승계됩니다. 관리비채권의 법적 소멸시효는 3년이며 미납관리비의 연체료나 관리사무소에서 임의적으로 계산한 지연손해금등이 매수자에게 승계되지 않습니다. 위 사항을 참고하여 관리사무소와 협의하여 처리하시기 바랍니다.
등기부 현황
건물
| 순위 | 접수일자 | 권리종류 | 권리자 | 채권금액 | 소멸여부 | 비고 |
|---|---|---|---|---|---|---|
| 1(갑5) | 2019-10-14 | 소유권이전(매매) | 박OO | 0 | 거래가액:168,500,000 | |
| 2(을6) | 2019-11-01 | 근저당 | 흥OOOOOOOO | 36,000,000 | 소멸 | 말소기준등기 |
| 3(을15) | 2021-04-30 | 근저당 | 흥OOOOOOOO | 69,600,000 | 소멸 | |
| 4(을20) | 2022-09-22 | 근저당 | (OOOOOOOO | 58,500,000 | 소멸 | |
| 5(갑6) | 2023-06-27 | 가압류 | 페OOOOO | 5,249,292 | 소멸 | 2023카단62598 |
| 6(갑7) | 2024-08-16 | 압류 | 시OO | 0 | 소멸 | |
| 7(갑8) | 2025-02-20 | 임의경매 | (OOOOOOOO | 48,257,877 | 소멸 | 2025타경51744 |
관련 문서 (PDF)
클릭하면 원본 파일이 열립니다