목록으로
최종 업데이트: 2026-04-26 17:10
2024타경84475
부동산
부동산임의경매
유찰
진행중
| 소재지 |
-
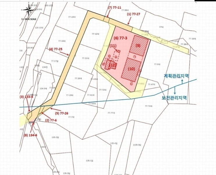
(경기도 양주시 장흥면 부곡리 77-27)
|
|---|---|
| 물건종류 | 근린시설 |
| 면적 |
토지: 0.00㎡ (0평)
건물: 1114.53㎡ (337.15평)
|
| 현재 위치 | 경기도 양주시 장흥면 부곡리 77-27 |
| 소유자 / 채무자 | 신승호 외1 / 신승호 |
| 채권자 | 에프에이치2406유동화전문유한회사 |
| 배당종기일 | 2024-12-02 |
감정가
3,022,840,620
최저가
1,036,834,000
보증금
103,683,400
입찰 진행 내역
| 회차/구분 | 입찰기일 | 최저매각가격 | 결과 |
|---|---|---|---|
| 1차 (진행) | 2025-10-15 | 3,022,840,620 | 유찰 |
| (진행) | 2025-11-19 | 2,115,988,000 | 변경 |
| 2차 (진행) | 2026-03-04 | 2,115,988,000 | 유찰 |
| 3차 (진행) | 2026-04-08 | 1,481,192,000 | 유찰 |
| 4차 (진행) | 2026-05-13 | 1,036,834,000 | |
| 5차 (진행) | 2026-06-17 | 725,784,000 |
임차인 현황
| 임차인명 | 점유여부 | 전입/확정/배당 | 보증금 / 차임 | 예상배당액 | 대항력 |
|---|---|---|---|---|---|
| (주)보국주택 | 점포 |
전입: -
확정: - 배당: - |
0
월 0
|
0 | 없음 |
| (주)서림이공일이 | 점포 씨동 |
전입: -
확정: - 배당: - |
0
월 2,500,000
|
0 | 없음 |
매각물건 현황
| 구분 | 순번 | 소재지 | 용도/구조/면적 | 감정가 | 비고 |
|---|---|---|---|---|---|
| 토지 | 토지 | 1 | 부곡리 77-27 / (한강)폐기물매립시설 설치제한지역,성장관리권역,토석채취제한지역,...(한강)폐기물매립시설 설치제한지역,성장관리권역,토석채취제한지역,계획관리지역,성장관리계획구역,가축사육제한구역 | 28 | 274,000원(133,500원) |
| 토지 | 2 | 부곡리 77-6 | (한강)폐기물매립시설 설치제한지역,성장관리권역,토석채취제한지역,...(한강)폐기물매립시설 설치제한지역,성장관리권역,토석채취제한지역,보전관리지역,가축사육제한구역 / 도로 3㎡ (0.91평) | 217,000 | 651,000원 |
| 토지 | 3 | 부곡리 133-4 | (한강)폐기물매립시설 설치제한지역,성장관리권역,보전관리지역,소하...(한강)폐기물매립시설 설치제한지역,성장관리권역,보전관리지역,소하천,가축사육제한구역,소하천구역,하천 / 도로 9.91㎡ (3평) | 215,000 | 2,130,650원 |
| 토지 | 4 | 부곡리 77-25 | (한강)폐기물매립시설 설치제한지역,성장관리권역,토석채취제한지역,...(한강)폐기물매립시설 설치제한지역,성장관리권역,토석채취제한지역,계획관리지역,성장관리계획구역,가축사육제한구역 / 도로 100㎡ (30.25평) | 274,000 | 27,400,000원 |
| 토지 | 5 | 부곡리 77-26 | (한강)폐기물매립시설 설치제한지역,성장관리권역,토석채취제한지역,...(한강)폐기물매립시설 설치제한지역,성장관리권역,토석채취제한지역,보전관리지역,가축사육제한구역 / 도로 6㎡ (1.82평) | 217,000 | 1,302,000원 |
| 토지 | 6 | 부곡리 77-3 | (한강)폐기물매립시설 설치제한지역,성장관리권역,토석채취제한지역,...(한강)폐기물매립시설 설치제한지역,성장관리권역,토석채취제한지역,계획관리지역,성장관리계획구역,가축사육제한구역 / 대 2870㎡ (868.18평) | 873,000 | 2,505,510,000원 |
| 토지 | 7 | 부곡리 77-11 | (한강)폐기물매립시설 설치제한지역,성장관리권역,토석채취제한지역,...(한강)폐기물매립시설 설치제한지역,성장관리권역,토석채취제한지역,계획관리지역,성장관리계획구역,가축사육제한구역 / 도로 3㎡ (0.91평) | 274,000 | 822,000원 |
| 토지 | 8 | 부곡리 134-4 | (한강)폐기물매립시설 설치제한지역,성장관리권역,계획관리지역,보전...(한강)폐기물매립시설 설치제한지역,성장관리권역,계획관리지역,보전관리지역,성장관리계획구역,가축사육제한구역,하천 / 도로 63.86㎡ (19.32평) | 217,000 | 13,857,620원 |
| 건물 | 1 | 가마골로 246-44 [부곡리 77-3 에이동]일반철골구조 철골조(이피에스판넬)지붕 | 1층 / 근린생활시설(창고) | 330 | 371,000원 |
| 2 | 가마골로 246-44 [부곡리 77-3 비동]일반철골구조 철골조(이피에스판넬)지붕 | 1층 | 근린생활시설(창고) / 391.05㎡(118.29평) | 371,000 | 145,079,550원 |
| 3 | 가마골로 264-44 [부곡리 77-3 씨동]일반철골구조 철골조(이피에스판넬)지붕 | 1층 | 근린생활시설(화장실) / 5㎡(1.51평) | 371,000 | 1,855,000원 |
| 4 | 가마골로 246-44 [부곡리 77-3 디동]벽돌구조 기타지붕 | 1층 | 근린생활시설(사무실 등) / 103.8㎡(31.4평) | 960,000 | 99,648,000원 |
| 5 | 2층 | 근린생활시설(사무실 등) | 61.68㎡(18.66평) / 960,000원 | 59,212,800 | * 사용승인:2015.01.22 |
| 제시외건물및기타 | 1 | 가마골로 246-44 [부곡리 77-3 디동]벽체이용 철골조 천막지붕 등 1.벽체이용 철골조 천막지붕, 2.판넬조 판넬지붕, 3.판넬조 판넬지붕, 4.목재, 5.목재, 6.경량철골조 판넬지붕 | 단층 / 창고 | 132 | 200,000원 |
| 2 | 단층 | 미상 | 6㎡(1.82평) / 20,000원 | 120,000 | 매각포함 |
| 3 | 단층 | 미상 | 2.5㎡(0.76평) / 20,000원 | 50,000 | 매각포함 |
| 4 | 데크시설 | 13.5㎡(4.08평) / 100,000원 | 1,350,000 | 매각포함 | |
| 5 | 창고 | 9㎡(2.72평) / 150,000원 | 1,350,000 | 매각포함 | |
| 6 | 단층 | 창고 | 60㎡(18.15평) / 100,000원 | 6,000,000 | 매각포함 |
현황 및 위치
* 본건은 경기도 양주시 장흥면 부곡리 소재 "송추정신병원" 서측 인근에 위치하며, 주위는 노인복지시설, 근린생활시설 및 숙박시설 등이 혼재하는 지역으로서, 제반주위환경은 보통임. * 본건까지 차량 진출입 가능하며, 인근에 노선버스정류장이 소재하는 등 교통상황은 보통임. * (1)~(5),(7),(8): 도로임. (6): 경사지대내 자체지반 평탄하게 조성한 사다리형의 토지로서, 근린생활시설 건부지로 이용중임. * (6): 북측, 서측 및 남측으로 노폭 약 6미터 내외의 포장도로와 각각 접함
참고사항
* 일괄매각. 제시외(㉠~㉥) 포함. 제시외 컨테이너는 매각 제외(3개동) * 본건 토지 일부에 식재되어 있는 수목 및 부지조성 목적의 석축 및 옹벽 등은 일반적인 거래 관행에 의거 토지에 포함하여 평가하였음 * 건1,2) 근린생활시설(창고), 건3)근린생활시설(화장실), 건4,5)근린생활시설(사무실 등)로 이용중임 * 건3) 도로명주소는 등기사항증명서상 경기도 양주시 장흥면 가마골로 "264-44"로 기재되어 있으나, 건축물대장 및 현황은 경기도 양주시 장흥면 가마골로 "246-44"임 * 토8) 둘 이상의 용도지역(보전관리지역, 계획관리지역)에 걸쳐 소재하나, 주된 용도지역인 보전관리지역을 기준으로 평가함 * 본건 토지 일부에 식재되어 있는 수목 및 부지조성 목적의 석축 및 옹벽 등은 거래 관행에 의거 토지에 포함하여 평가함
등기부 현황
건물
| 순위 | 접수일자 | 권리종류 | 권리자 | 채권금액 | 소멸여부 | 비고 |
|---|---|---|---|---|---|---|
| 1(갑2) | 2018-08-29 | 소유권이전(매매) | 신OO | 0 | ||
| 2(을6) | 2019-05-30 | 근저당 | 하OOOOOOOOOO | 1,680,000,000 | 소멸 | 말소기준등기 |
| 3(갑12) | 2024-04-12 | 가압류 | 우OOO | 38,856,183 | 소멸 | 2024카단808224 |
| 4(갑17) | 2024-06-21 | 압류 | 양OO | 0 | 소멸 | |
| 5(갑18) | 2024-08-20 | 가압류 | (OOOOOOOO | 404,427,980 | 소멸 | 2024카단819131 |
| 6(갑19) | 2024-09-10 | 임의경매 | 에OOOOOOOOOOOOOOOOO | 1,099,500,165 | 소멸 | 2024타경84475, 변경전 하나은행 |
관련 문서 (PDF)
클릭하면 원본 파일이 열립니다