목록으로
최종 업데이트: 2026-04-25 15:59
2025타경71790
부동산
부동산임의경매
유찰
진행중
| 소재지 |
-
(경기도 가평군 가평읍 승안리 415-13)
|
|---|---|
| 물건종류 | 숙박시설 |
| 면적 |
토지: 0.00㎡ (0평)
건물: 194.08㎡ (58.71평)
|
| 현재 위치 | 경기도 가평군 가평읍 승안리 415-13 |
| 소유자 / 채무자 | 신원철 / 신원철 |
| 채권자 | 가평축협 |
| 배당종기일 | 2025-08-25 |
감정가
228,893,220
최저가
112,158,000
보증금
11,215,800
입찰 진행 내역
| 회차/구분 | 입찰기일 | 최저매각가격 | 결과 |
|---|---|---|---|
| 1차 (진행) | 2026-02-25 | 228,893,220 | 유찰 |
| 2차 (진행) | 2026-04-01 | 160,225,000 | 유찰 |
| 3차 (진행) | 2026-05-06 | 112,158,000 | |
| 4차 (진행) | 2026-06-10 | 78,511,000 |
임차인 현황
| 임차인명 | 점유여부 | 전입/확정/배당 | 보증금 / 차임 | 예상배당액 | 대항력 |
|---|---|---|---|---|---|
| 김윤희 | 점포 2층 36㎡ |
전입: -
확정: - 배당: - |
5,000,000
월 400,000
|
0 | 없음 |
| 전준열 | 주거용 |
전입: 2023-10-12
확정: - 배당: - |
0
월 0
|
0 | 없음 |
매각물건 현황
| 구분 | 순번 | 소재지 | 용도/구조/면적 | 감정가 | 비고 |
|---|---|---|---|---|---|
| 토지 | 토지 | 승안리 415-13 | 자연보전권역,가축사육제한구역,계획관리지역 / 대 347㎡ (104.97평) | 340,000 | 117,980,000원 |
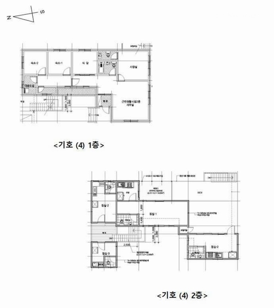
| 건물 | 1 | 용추로 278-27 [승안리 415-13]조적조 및 일반철골구조 및 경량철골조 경사지붕 | 1층 / 펜션 | 99 | 548,000원 |
| 2 | 2층 | 펜션 | 59.24㎡(17.92평) / 558,000원 | 33,055,920 | * 사용승인:1999.01.21* 공부상 사무소 및 다가구주택 * 증축부분 |
| 3 | 2층 | 펜션 | 35.74㎡(10.81평) / 575,000원 | 20,550,500 | * 사용승인:1999.01.21* 공부상 사무소 및 다가구주택 * 증축부분 |
| 제시외건물및기타 | 용추로 278-27 [승안리 415-13] | 태양광패널 3식 / | 0 | 3,000,000원 |
현황 및 위치
* 본건은 경기도 가평군 가평읍 승안리 소재 "승안2리 마을회관" 북서측 인근에 위치하며, 주위는 단독주택, 근린생활시설, 전, 임야 등이 소재하여 제반 주위환경은 보통임 * 토지까지 차량의 출입이 가능하며, 인근에 노선버스정류장이 소재하는 등 제반 교통상황은 보통임. * 등고평탄한 사다리형의 토지로서 현황 상업용(펜션) 건부지로 이용중임 * 북동측으로 노폭 약 4M 내외의 도로와 접하고 있음
참고사항
* 일괄매각 * 제시외 건물(감정평가서상㉣~㉥) 포함 * 본건 건물 일반건축물대장상 용도가 "사무소 및 다가구주택"이나 현황"펜션"으로 이용중임
전문가 코멘트
☞ 물번이 여러 개인 경우 모든 물건이 매각된 후 배당기일이 지정됩니다. 배당기일 이후 인도명령결정이 가능하므로 임차인의 인도명령결정까지 다소 기간이 소요될 수 있으니 참고하시기 바랍니다.
등기부 현황
건물
| 순위 | 접수일자 | 권리종류 | 권리자 | 채권금액 | 소멸여부 | 비고 |
|---|---|---|---|---|---|---|
| 2(을9) | 2015-10-19 | 근저당 | 가OOOOOOOOO | 140,000,000 | 소멸 | 말소기준등기 |
| 3(갑17) | 2019-03-11 | 소유권이전(증여) | 신OO | 0 | ||
| 4(갑18) | 2024-10-16 | 가압류 | 경OOOOOOO | 57,005,000 | 소멸 | 2024카단510338 |
| 5(갑19) | 2024-11-05 | 가압류 | 가OOO | 38,271,032 | 소멸 | 2024카단568 |
| 6(갑20) | 2025-06-04 | 임의경매 | 가OOO | 313,160,463 | 소멸 | 2025타경71790 |
| 7(을11) | 2025-08-22 | 근저당 | 전OO | 100,000,000 | 소멸 | |
| 8(을12) | 2025-08-25 | 근저당 | 김OO | 30,000,000 | 소멸 |
관련 문서 (PDF)
클릭하면 원본 파일이 열립니다