목록으로
최종 업데이트: 2026-04-26 09:54
2024타경87577
부동산
부동산임의경매
유찰
진행중
| 소재지 |
-
(경기도 가평군 설악면 선촌리 456-1)
|
|---|---|
| 물건종류 | 다세대(빌라) |
| 면적 |
토지: 0.00㎡ (0평)
건물: 904.92㎡ (273.74평)
|
| 현재 위치 | 경기도 가평군 설악면 선촌리 456-1 |
| 소유자 / 채무자 | 김동일 / 김동일 |
| 채권자 | 새마을금고중앙회 |
| 배당종기일 | 2025-03-19 |
감정가
2,980,000,000
최저가
1,460,200,000
보증금
146,020,000
입찰 진행 내역
| 회차/구분 | 입찰기일 | 최저매각가격 | 결과 |
|---|---|---|---|
| 1차 (진행) | 2026-03-03 | 2,980,000,000 | 유찰 |
| 2차 (진행) | 2026-04-07 | 2,086,000,000 | 유찰 |
| 3차 (진행) | 2026-05-12 | 1,460,200,000 | |
| 4차 (진행) | 2026-06-16 | 1,022,140,000 |
임차인 현황
| 임차인명 | 점유여부 | 전입/확정/배당 | 보증금 / 차임 | 예상배당액 | 대항력 |
|---|---|---|---|---|---|
| 박건영 | 주거용 202호 전부 |
전입: 2022-11-01
확정: 2023-02-03 배당: 2025-01-16 |
30,000,000
월 400,000
|
0 | 있음 |
매각물건 현황
| 구분 | 순번 | 소재지 | 용도/구조/면적 | 감정가 | 비고 |
|---|---|---|---|---|---|
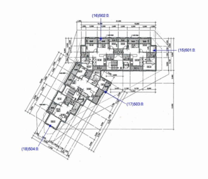
| 건1 | 선촌리 456-1(5층중2층 201호) | 22.06.03 | 59.66㎡(18.05평) / 도시생활형주택-연립주택 | 158,950,000 | |
| 건2 | 선촌리 456-1(5층중2층 202호) | 22.06.03 | 59.63㎡(18.04평) / 도시생활형주택-연립주택 | 158,950,000 | |
| 건3 | 선촌리 456-1(5층중2층 203호) | 22.06.03 | 59.65㎡(18.04평) / 도시생활형주택-연립주택 | 158,950,000 | |
| 건4 | 선촌리 456-1(5층중2층 204호) | 22.06.03 | 43.9㎡(13.28평) / 도시생활형주택-연립주택 | 117,300,000 | |
| 건5 | 선촌리 456-1(5층중3층 301호) | 22.06.03 | 59.66㎡(18.05평) / 도시생활형주택-연립주택 | 158,950,000 | |
| 건6 | 선촌리 456-1(5층중3층 302호) | 22.06.03 | 59.63㎡(18.04평) / 도시생활형주택-연립주택 | 158,950,000 | |
| 건7 | 선촌리 456-1(5층중3층 303호) | 22.06.03 | 59.65㎡(18.04평) / 도시생활형주택-연립주택 | 158,950,000 | |
| 건8 | 선촌리 456-1(5층중3층 304호) | 22.06.03 | 43.9㎡(13.28평) / 도시생활형주택-연립주택 | 117,300,000 | |
| 건9 | 선촌리 456-1(5층중4층 401호) | 22.06.03 | 59.66㎡(18.05평) / 도시생활형주택-연립주택 | 158,950,000 | |
| 건10 | 선촌리 456-1(5층중4층 402호) | 22.06.03 | 59.63㎡(18.04평) / 도시생활형주택-연립주택 | 158,950,000 | |
| 건11 | 선촌리 456-1(5층중4층 403호) | 22.06.03 | 59.65㎡(18.04평) / 도시생활형주택-연립주택 | 158,950,000 | |
| 건12 | 선촌리 456-1(5층중4층 404호) | 22.06.03 | 43.9㎡(13.28평) / 도시생활형주택-연립주택 | 117,300,000 | |
| 건13 | 선촌리 456-1(5층중5층 501호) | 22.06.03 | 65.06㎡(19.68평) / 도시생활형주택-연립주택 | 206,550,000 | |
| 건14 | 선촌리 456-1(5층중5층 502호) | 22.06.03 | 62.89㎡(19.02평) / 도시생활형주택-연립주택 | 199,750,000 | |
| 건15 | 선촌리 456-1(5층중5층 503호) | 22.06.03 | 59.65㎡(18.04평) / 도시생활형주택-연립주택 | 189,550,000 | |
| 건16 | 선촌리 456-1(5층중5층 504호) | 22.06.03 | 48.8㎡(14.76평) / 도시생활형주택-연립주택 | 154,700,000 |
현황 및 위치
* 본건은 경기도 가평군 설악면 선촌리 소재 "가평무브베이스볼센터" 남서쪽 인근에 위치하며 부근은 연립주택, 근린생활시설, 단독주택 등으로 형성되어있음. * 본건까지 차량 출입 용이하며 인근에 버스정류장이 소재하여 대중교통사정은 보통시됨. * 대체로 사다리형 토지로 인접지와 등고 평탄하며 도시생활형주택(연립주택) 건부지로 이용중임. * 북서측으로 노폭 약 8미터 포장도로, 서쪽, 남동쪽으로 노폭 약4미터 포장도로에 접함.
참고사항
* 선촌리 456-1) 대 699㎡ * 선촌리 456-4) 도로 77㎡ * 일괄매각 * 대지권 미등기이며 최저매각가격에는 대지권 가격이 포함되어 있으나 그 성립여부는 불분명함 * 선촌리 456-1 456-4) 토지는 채권자인 새마을금고중앙회 대표자 회장 김인이 제출한 보정서와 같이 구분건물의 대지권이 되는 토지이고 대지사용권이 전유부분과 분리 처분이 불가능하여 전유부분인 건1-16)에 포함하여 평가하였음 ☞ 경기 가평군으로부터 이 사건 건물에 대해 발급 된 사용승인서가 첨부된 공문이 회신됨 ☞ 감정평가서 상의 감정평가액 합계 "2,980,000,636"은 "2,980,000,000"의 오기임
전문가 코멘트
** 본 건은 현재 대지권은 미등기 이지만 건물소유자가 대지에 소유권을 가지고 있고 건물과 대지권 대상의 토지가 일괄매각되어 문제가 없습니다. ( 매각목록에도 포함되었습니다. 촉탁등기 시에 토지에 대한 소유권을 이전신청하면 됩니다.) 매입 후에 각각의 대지권으로 분할하여 토지등기부는 폐쇠하면 될 것입니다. 다만 매각되는 토지가 건물의 건축에 필요한 행정 상 요건을 충족하는 지는 별도로 판단이 필요합니다.
등기부 현황
건물
| 순위 | 접수일자 | 권리종류 | 권리자 | 채권금액 | 소멸여부 | 비고 |
|---|---|---|---|---|---|---|
| 1(갑1) | 2024-03-28 | 소유권보존 | 김OO | 0 | 가처분등기 촉탁으로 인하여 | |
| 2(갑3) | 2024-04-02 | 압류 | 가OO | 0 | 소멸 | 말소기준등기 |
| 3(을1) | 2024-12-06 | 근저당 | 새OOOOOOO | 384,000,000 | 소멸 | |
| 4(을2) | 2024-12-06 | 근저당 | 새OOOOOOO | 2,904,000,000 | 소멸 | |
| 5(갑5) | 2024-12-30 | 임의경매 | 새OOOOOOO | 3,176,710,990 | 소멸 | 2024타경87577 |
관련 문서 (PDF)
클릭하면 원본 파일이 열립니다