목록으로
최종 업데이트: 2026-04-22 13:21
2025타경51802
수원지방법원 성남지원 5계(031-737-1325)
부동산
부동산임의경매
유찰
진행중
| 소재지 |
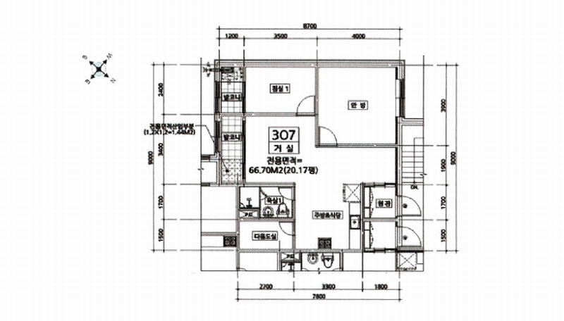
경기도 광주시 벌원길 43-11, 에코파크힐 3층 307호
(경기도 광주시 탄벌동 120)
|
|---|---|
| 물건종류 | 다세대(빌라) |
| 면적 |
토지: 38.86㎡ (11.76평)
건물: 66.70㎡ (20.18평)
|
| 현재 위치 | 경기도 광주시 벌원길 43-11, 에코파크힐 3층 307호 |
| 소유자 / 채무자 | 전원석 / 전원석 |
| 채권자 | 케이에프더블유이사공삼유동화전문유한회사 (양도인 : 우리은행) |
| 배당종기일 | 2025-06-02 |
감정가
270,000,000
최저가
132,300,000
보증금
13,230,000
입찰 진행 내역
| 회차/구분 | 입찰기일 | 최저매각가격 | 결과 |
|---|---|---|---|
| 1차 (진행) | 2026-02-23 | 270,000,000 | 유찰 |
| 2차 (진행) | 2026-03-30 | 189,000,000 | 유찰 |
| 3차 (진행) | 2026-05-04 | 132,300,000 | |
| 4차 (진행) | 2026-06-08 | 92,610,000 |
임차인 현황
| 임차인명 | 점유여부 | 전입/확정/배당 | 보증금 / 차임 | 예상배당액 | 대항력 |
|---|---|---|---|---|---|
| 김삼태 | 주거용 |
전입: 2023-05-18
확정: - 배당: - |
0
월 0
|
0 | 없음 |
매각물건 현황
| 구분 | 순번 | 소재지 | 용도/구조/면적 | 감정가 | 비고 |
|---|---|---|---|---|---|
| 건물 | 5층중 3층 | 21.04.02 | 66.7㎡(20.18평) / 도시형생활주택 | 162,000,000 | * 도시가스 개별난방설비 |
현황 및 위치
* 본건은 경기도 광주시 탄벌동 소재 ""탄벌중학교"" 북동측 인근에 위치하며, 부근은 아파트, 다세대주택 등이 혼재된 지역으로서 공동주거지로서의 주위환경 보통임. * 본건까지 차량 접근 가능하며 인근의 간선도로변에 대중교통편인 노선버스정류장이 소재하여 대중교 통사정 보통임. * 인접한 토지와 같은 높이의 세장형 토지로서 공동주택 건부지로 이용 중임. * 본건 남동측으로 노폭 약6m의 포장도로에 접함.
등기부 현황
건물
| 순위 | 접수일자 | 권리종류 | 권리자 | 채권금액 | 소멸여부 | 비고 |
|---|---|---|---|---|---|---|
| 1(갑2) | 2022-07-22 | 소유권이전(매매) | 전OO | 0 | ||
| 2(을5) | 2023-05-15 | 근저당 | 우OOOOOOOOOOOO | 231,000,000 | 소멸 | 말소기준등기 |
| 3(갑3) | 2023-12-28 | 가압류 | 롯OOOOOO | 9,952,061 | 소멸 | 2023카단4582 |
| 4(갑4) | 2024-01-09 | 가압류 | 농OOO | 8,498,218 | 소멸 | 2024카단3018 |
| 5(갑5) | 2024-02-08 | 가압류 | (OOOOOOOOO | 17,849,659 | 소멸 | 2024카단30 |
| 6(갑7) | 2024-04-09 | 가압류 | 신OOOOOO | 21,365,979 | 소멸 | 2024카단3584 |
| 7(갑8) | 2024-04-12 | 가압류 | 농OOO | 21,757,364 | 소멸 | 2024카단808188 |
| 8(갑9) | 2024-04-15 | 가압류 | 농OOO | 28,308,278 | 소멸 | 2024카단808300 |
| 9(갑10) | 2024-04-16 | 가압류 | 한OOOOOOO | 195,816,282 | 소멸 | 2024카단808186 |
| 10(갑11) | 2024-04-16 | 가압류 | 한OOOOOOO | 189,000,000 | 소멸 | 2024카단62062 |
| 11(갑12) | 2025-03-06 | 압류 | 국OOOOOOOO | 0 | 소멸 | |
| 12(갑14) | 2025-03-17 | 임의경매 | 케OOOOOOOOOOOOOOOOOOO | 233,405,680 | 소멸 | 2025타경51802, 양도인 :우리은행 |
| 13(갑15) | 2025-05-19 | 압류 | 국OOOOOOOOO | 0 | 소멸 | |
| 14(갑16) | 2025-06-13 | 압류 | 광OO | 0 | 소멸 | |
| 15(갑17) | 2025-07-21 | 압류 | 국OOOOOOOOOO | 0 | 소멸 | |
| 16(갑18) | 2025-10-10 | 압류 | 국OOOOOOO | 0 | 소멸 |
관련 문서 (PDF)
클릭하면 원본 파일이 열립니다