목록으로
최종 업데이트: 2026-04-26 16:30
2025타경10314
춘천지방법원 속초지원 2계(033-639-7643)
부동산
부동산임의경매
유찰
진행중
| 소재지 |
-
(강원특별자치도 고성군 죽왕면 야촌리 1024-44)
|
|---|---|
| 물건종류 | 근린시설 |
| 면적 |
토지: 0.00㎡ (0평)
건물: 1315.51㎡ (397.94평)
|
| 현재 위치 | 강원특별자치도 고성군 죽왕면 야촌리 1024-44 |
| 소유자 / 채무자 | 이상신외1명 / 이상신외1명 |
| 채권자 | (주)윈즈에프앤아이대부 |
| 배당종기일 | 2025-10-02 |
감정가
2,441,530,400
최저가
837,445,000
보증금
83,744,500
입찰 진행 내역
| 회차/구분 | 입찰기일 | 최저매각가격 | 결과 |
|---|---|---|---|
| 1차 (진행) | 2026-02-04 | 2,441,530,400 | 유찰 |
| 2차 (진행) | 2026-03-04 | 1,709,071,000 | 유찰 |
| 3차 (진행) | 2026-04-08 | 1,196,350,000 | 유찰 |
| 4차 (진행) | 2026-05-06 | 837,445,000 |
임차인 현황
| 임차인명 | 점유여부 | 전입/확정/배당 | 보증금 / 차임 | 예상배당액 | 대항력 |
|---|---|---|---|---|---|
| 이슬기 | 주거용 전부 |
전입: 2022-02-04
확정: 2022-01-03 배당: 2024-01-02 |
331,000,000
월 0
|
0 | 있음 |
| 주택도시보증공사 | 주거용 전부 |
전입: 2022-02-04
확정: 2022-01-03 배당: 2025-06-10 |
331,000,000
월 0
|
0 | 있음 |
매각물건 현황
| 구분 | 순번 | 소재지 | 용도/구조/면적 | 감정가 | 비고 |
|---|---|---|---|---|---|
| 토지 | 토지 | 야촌리 1024-44 | 준보전산지,가축사육제한구역,생산관리지역 / 대 4530㎡ (1370.33평) | 75,000 | 339,750,000원 |
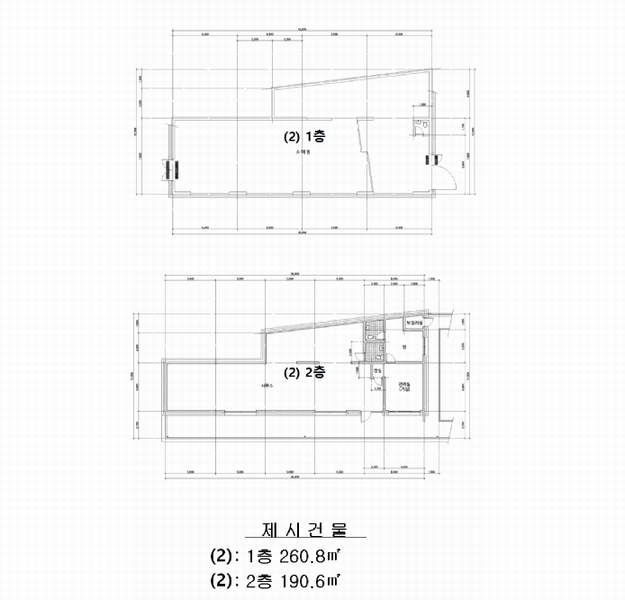
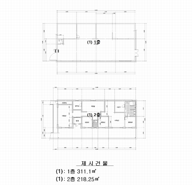
| 건물 | 1 | 곡실평길 340 [야촌리 1024-44 1동]철근콘크리트구조 철근콘크리트지붕 | 1층 / 제1종근린생활시설 | 311 | 1,530,000원 |
| 2 | 2층 | 제1종근린생활시설 | 218.25㎡(66.02평) / 1,820,000원 | 397,215,000 | * 사용승인:2023.04.12 |
| 3 | 곡실평길 340 [야촌리 1024-44 2동]철근콘크리트구조 철근콘크리트지붕 | 1층 | 제1종근린생활시설 / 260.8㎡(78.89평) | 1,530,000 | 399,024,000원 |
| 4 | 2층 | 제1종근린생활시설 | 190.6㎡(57.66평) / 1,680,000원 | 320,208,000 | * 사용승인:2023.04.12 |
| 5 | 곡실평길 340 [야촌리 1024-44 3동]철근콘크리트구조 철근콘크리트지붕 | 단층 | 제1종근린생활시설 / 246.96㎡(74.71평) | 1,530,000 | 377,848,800원 |
| 제시외기타 | 1 | 야촌리 1024-44 | / 조경석 23식 | 0 | |
| 2 | 조경수 52주 | / | 26,500,000 | 매각포함 | |
| 3 | 곡실평길 340 [야촌리 1024-44 3동]철근콘크리트구조 | 구조물 / 87.8㎡(26.56평) | 672,000 | 59,001,600원 |
현황 및 위치
* 본건은 강원특별자치도 고성군 죽왕면 야촌리 소재 "피움힐링파크" 내에 위치하며, 인근은 임야, 농경지, 일부 농가주택 및 피움힐링파크 등으로 형성된 지역임. * 본건까지 차량접근 가능하고 시내버스정류장과의 거리 및 운행빈도 등으로 볼 때 대중교통사 정은 불편시 됨. * 부정형상의 토지로서 현황 ""상업용 건부지 및 일부 비포장 도로""로 이용중임. * 본건 남동측으로 로폭 약 5미터 내외의 비포장 도로를 이용하여 접근가능함.
참고사항
* 일괄매각 * 제시외 건물 포함(소유자 미상의 미술품들은 매각에서 제외) * 토지 지상의 조경수 및 조경석은 각 일괄하여 평가에 포함. ☞현황서상 내용: 건1) 내부 소유자 미상의 조형 미술품 약 12점 있음. 1동과 2동 연결통로에 소유자 미상의 조형 미술품 1점 있음. 건2-4) 내부 소유자 미상의 조형미술품 약 19점 있음, 2동과 3동 연결
등기부 현황
건물
| 순위 | 접수일자 | 권리종류 | 권리자 | 채권금액 | 소멸여부 | 비고 |
|---|---|---|---|---|---|---|
| 1(갑1) | 2023-04-17 | 소유권보존 | (OOOOOOO | 0 | ||
| 2(을1) | 2023-06-20 | 근저당 | (OOOOO | 2,250,000,000 | 소멸 | 말소기준등기 |
| 3(갑4) | 2024-05-30 | 압류 | 국OOOOOOO | 0 | 소멸 | |
| 4(갑5) | 2024-12-04 | 압류 | 고OOOOOOOOOOO | 0 | 소멸 | |
| 5(갑6) | 2025-01-17 | 가압류 | 서OOOOOOOO | 387,584,000 | 소멸 | 2024카단10526 |
| 6(갑7) | 2025-07-15 | 임의경매 | (OOOOOOOOOOO | 772,802,753 | 소멸 | 2025타경10314 |
| 7(갑8) | 2025-07-22 | 압류 | 국OOOOOOO | 0 | 소멸 |
관련 문서 (PDF)
클릭하면 원본 파일이 열립니다