목록으로
최종 업데이트: 2026-04-26 02:25
2025타경1476
수원지방법원 성남지원 8계(031-737-1333)
부동산
부동산임의경매
유찰
진행중
| 소재지 |
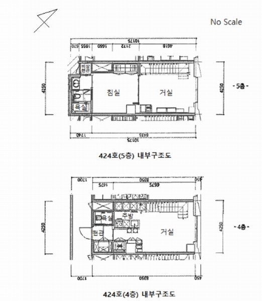
경기도 성남시 분당구 황새울로311번길 28, 라포르테블랑서현 424호외1개호
(경기도 성남시 분당구 서현동 275)
|
|---|---|
| 물건종류 | 근린상가 |
| 면적 |
토지: 970.15㎡ (293.47평)
건물: 65.78㎡ (19.9평)
|
| 현재 위치 | 경기도 성남시 분당구 황새울로311번길 28, 라포르테블랑서현 424호외1개호 |
| 소유자 / 채무자 | 안은영 / 안은영 |
| 채권자 | 국민은행 |
| 배당종기일 | 2025-06-18 |
감정가
1,275,000,000
최저가
437,325,000
보증금
43,732,500
입찰 진행 내역
| 회차/구분 | 입찰기일 | 최저매각가격 | 결과 |
|---|---|---|---|
| 1차 (진행) | 2026-01-26 | 1,275,000,000 | 유찰 |
| 2차 (진행) | 2026-02-27 | 892,500,000 | 유찰 |
| 3차 (진행) | 2026-04-06 | 624,750,000 | 유찰 |
| 4차 (진행) | 2026-05-11 | 437,325,000 |
임차인 현황
| 임차인명 | 점유여부 | 전입/확정/배당 | 보증금 / 차임 | 예상배당액 | 대항력 |
|---|---|---|---|---|---|
| 박지영 | 주거용 건물 전부 |
전입: 2025-02-21
확정: 2025-02-21 배당: 2025-05-08 |
25,000,000
월 1,450,000
|
0 | 없음 |
매각물건 현황
| 구분 | 순번 | 소재지 | 용도/구조/면적 | 감정가 | 비고 |
|---|---|---|---|---|---|
| 건1 | 서현동 275(8층중4층 424호) | 97.01.24 | 65.7846㎡(19.9평) / 복층형 오피스텔 | 882,000,000 | * 철근콘크리트구조 4층 31.2641㎡ 5층 34.5205㎡ |
| 건2 | 서현동 275(8층중4층 1주차장호) | 97.01.24 | 51.31㎡(15.52평) / 주차장 | 10,500,000 | * 철근콘크리트구조 지2층 3197.0632㎡ 지1층 3370.7387㎡ ☞ 전체면적 6,567.8019㎡중 갑구 59번 안은영 지분 128분의 1 전부 매각 |
현황 및 위치
* 본건은 경기도 성남시 분당구 서현동 소재 지하철 ""서현역"" 북서측 인근에 위치하며 주위는 오피스텔, 호텔, 업무용빌딩, 병원, 점포, 음식점, 위락시설 등 각종 상업용 빌딩, 근린생활 시설 등이 혼재하는 지역임. * 본건은 차량 접근이 양호하고, 노선 버스 정류장 및 지하철 역과의 거리 및 운행여건 등으로 보아 대중교통사정은 양호함. * 가장형의 평탄한 토지로서 집합건축물(오피스텔, 근린생활시설, 주차장) 건부지로 이용중임. * 본건은 주위로 소로1류, 소로2류 및 중로2류와 접함.
참고사항
* 일괄매각 * 본건 제1주차장호 (지2층, 지1층)는 수인 공유지분으로서 매각 지분의 위치가 특정되어 있지 않은 물건으로서 제1주차장호 (지2층, 지1층) 전체 면적을 기준으 로 평가하되 매각 지분비율에 의거 면적 사정하여 평가가액을 결정하였음. * 건1,2) 거래 관행상 일체로 거래되는 바 경매 진행 시 업무에 참고하시기 바랍니다.
등기부 현황
건물
| 순위 | 접수일자 | 권리종류 | 권리자 | 채권금액 | 소멸여부 | 비고 |
|---|---|---|---|---|---|---|
| 1(갑5) | 2023-12-15 | 소유권이전(매매) | 안OO | 0 | 거래가액:1,235,300,000 | |
| 2(을1) | 2023-12-15 | 근저당 | 국OOOOOOOOO | 1,068,000,000 | 소멸 | 말소기준등기 |
| 3(갑6) | 2025-04-15 | 임의경매 | 국OOOOOOOOOOO | 922,689,751 | 소멸 | 2025타경1476 |
| 4(갑7) | 2025-10-23 | 압류 | 성OOOOOOOOO | 0 | 소멸 |
관련 문서 (PDF)
클릭하면 원본 파일이 열립니다