목록으로
최종 업데이트: 2026-04-27 03:56
2024타경52534
수원지방법원 평택지원 1계(031-650-3164)
부동산
부동산임의경매
유찰
진행중
| 소재지 |
-
(경기도 안성시 보개면 기좌리 13-1)
|
|---|---|
| 물건종류 | 농가관련시설 |
| 면적 |
토지: 0.00㎡ (0평)
건물: 1451.96㎡ (439.22평)
|
| 현재 위치 | 경기도 안성시 보개면 기좌리 13-1 |
| 소유자 / 채무자 | 민무홍 외 3 / 농업회사법인 진흥파이프(주)외 1 |
| 채권자 | (주)아이에스인베스트먼트(변경전:농업회사법인일성팜(주) 외 1 |
| 배당종기일 | 2025-01-03 |
감정가
1,434,604,240
최저가
1,004,223,000
보증금
100,422,300
입찰 진행 내역
| 회차/구분 | 입찰기일 | 최저매각가격 | 결과 |
|---|---|---|---|
| 1차 (진행) | 2026-03-16 | 3,335,854,240 | 유찰 |
| (진행) | 2026-04-13 | 2,335,098,000 | 변경 |
| 2차 (진행) | 2026-04-13 | 1,434,604,240 | 유찰 |
| 3차 (진행) | 2026-06-08 | 1,004,223,000 | |
| 4차 (진행) | 2026-07-13 | 702,956,000 | |
| 5차 (진행) | 2026-08-24 | 492,069,000 |
임차인 현황
| 임차인명 | 점유여부 | 전입/확정/배당 | 보증금 / 차임 | 예상배당액 | 대항력 |
|---|---|---|---|---|---|
| 농업회사법인(주)와이에스농생명과학 | 공장 244.50 00제곱 미터 |
전입: -
확정: - 배당: - |
0
월 0
|
0 | 없음 |
| 농업회사법인(주)제빵제분소 | 공장 33.000 0제곱 미터 |
전입: -
확정: - 배당: - |
0
월 300,000
|
0 | 없음 |
매각물건 현황
| 구분 | 순번 | 소재지 | 용도/구조/면적 | 감정가 | 비고 |
|---|---|---|---|---|---|
| 토지 | 토지 | 기좌리 13-1 | 토지거래계약에관한허가구역,가축사육제한구역,성장관리계획구역,성장...토지거래계약에관한허가구역,가축사육제한구역,성장관리계획구역,성장관리권역,계획관리지역 / 공장용지 3289㎡ (994.92평) | 260,000 | 855,140,000원 |
| 건물 | 1 | 보개원삼로 474-61 [기좌리 13-1 가동]일반목구조 및 경량철골구조 판넬지붕 및 폴리카보네이트지붕 등 1.일반목구조 및 경량철골구조 판넬지붕 및 폴리카보네이트지붕, 2.일반목구조 및 경량철골구조 판넬지붕 및 폴리카보네이트지붕, 3.일반목구조 판넬지붕및폴리카보네이트지붕 | 1층 / 관리사 | 150 | 937,000원 |
| 2 | 2층 | 관리사 | 77.34㎡(23.4평) / 937,000원 | 72,467,580 | * 사용승인:2009.07.10 |
| 3 | 1층 | 정자 | 6.09㎡(1.84평) / 125,000원 | 761,250 | * 사용승인:2009.07.10* 부속건물 * 현황 "아스팔트슁글지붕" |
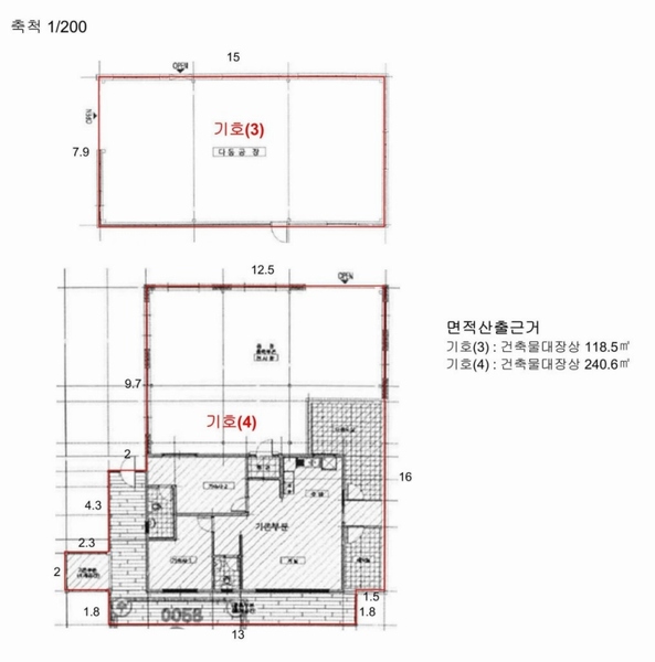
| 4 | 보개원삼로 474-61 [기좌리 13-1 다동]벽돌구조 판넬지붕 | 1층 | 관리사 창고 / 118.5㎡(35.85평) | 326,000 | 38,631,000원 |
| 5 | 보개원삼로 474-61 [기좌리 13-1 라동]일반목구조 및 경량철골구조 판넬지붕 및 폴리카보네이트지붕 | 1층 | 관리사 / 240.6㎡(72.78평) | 870,000 | 209,322,000원 |
| 6 | 보개원삼로 474-61 [기좌리 13-1 바동]벽돌구조 판넬지붕 | 1층 | 사육사(현황 공실상태) / 110.2㎡(33.34평) | 326,000 | 35,925,200원 |
| 7 | 보개원삼로 474-61 [기좌리 13-1 마동]벽돌구조 판넬지붕 | 1층 | 사육사(현황 공실상태) / 180.8㎡(54.69평) | 326,000 | 58,940,800원 |
| 제시외건물및기타 | 1 | 기좌리 13-1철파이프조 비닐지붕 등 1.철파이프조 비닐지붕, 2.철파이프조 비닐지붕, 3.판넬조 판넬지붕, 4.판넬조 판넬지붕, 5.철파이프조 비닐지붕, 6.판넬조 판넬지붕, 7.철파이프조 비닐지붕, 8.판넬조 판넬지붕, 9.철파이프조 비닐지붕, 10.철파이프조 비닐지붕 | 단층 / 작업장 | 97 | 40,000원 |
| 2 | 단층 | 작업장 | 165㎡(49.91평) / 40,000원 | 6,600,000 | 매각포함 |
| 3 | 단층 | 작업장 | 12㎡(3.63평) / 37,000원 | 444,000 | 매각포함 |
| 4 | 단층 | 작업장 | 12㎡(3.63평) / 37,000원 | 444,000 | 매각포함 |
| 5 | 단층 | 작업장 | 54㎡(16.34평) / 40,000원 | 2,160,000 | 매각포함 |
| 6 | 단층 | 작업장 | 14.1㎡(4.27평) / 37,000원 | 521,700 | 매각포함 |
| 7 | 단층 | 창고 | 4㎡(1.21평) / 25,000원 | 100,000 | 매각포함 |
| 8 | 단층 | 계단실 | 1.5㎡(0.45평) / 45,000원 | 67,500 | 매각포함 |
| 9 | 단층 | 차양 | 143.5㎡(43.41평) / 40,000원 | 5,740,000 | 매각포함 |
| 10 | 단층 | 차양 | 64.5㎡(19.51평) / 40,000원 | 2,580,000 | 매각포함 |
현황 및 위치
* 본건은 경기도 안성시 보개면 소재 "보개면행정복지센터" 북측 인근에 위치하며, 부근은 농 경지를 위주로 근린생활시설이 산재하는 시외곽 농촌지대로서 제반여건은 무난함. * 본건까지 차량접근이 가능하고, 서측 인근에 노선버스정류장이 소재하여 제반교통사정은 무난함. * 남동 하향 완경사지내 계단식으로 조성된 자루형 및 방형의 토지로서 본건 내부 및 도로와의 경계에 옹벽 또는 보강토공사가 되어 있으며, 공업용 건부지로 이용중임. * 기좌리 13-1 과 기좌리 14 사이로 로폭 약 3m내외의 콘크리트포장도로를 이용중임.
참고사항
* 일괄매각. 제시외 건물 포함 * 건1-3)부속건물(정자)는 공부상 "판넬지붕 및 폴리카보네이트지붕"이나 현황 "아스팔트슁글지붕"임 * 토지 지상 건물들의 도로명 주소는 "보개삼원로 474-59"로 조회 됨
등기부 현황
건물
| 순위 | 접수일자 | 권리종류 | 권리자 | 채권금액 | 소멸여부 | 비고 |
|---|---|---|---|---|---|---|
| 1(갑4) | 2012-04-02 | 소유권이전(매매) | 민OO | 0 | ||
| 2(을15) | 2016-07-04 | 근저당 | 농OOOOOOOOOOOOOOOOO | 1,220,000,000 | 소멸 | 말소기준등기확정채권양도전:삼죽농업협동조합 |
| 3(갑6) | 2017-04-28 | 가압류 | 태OOOOOO | 23,382,800 | 소멸 | 2017카단107 |
| 4(갑8) | 2018-05-14 | 가압류 | 용OOO | 10,068,831 | 소멸 | 2018카단20167 |
| 5(갑10) | 2018-08-13 | 압류 | 안OO | 0 | 소멸 | |
| 6(갑17) | 2022-02-17 | 소유권이전담보가등기 | 농OOOOOOOOOOO | 0 | 소멸 | 대물반환예약 |
| 7(갑19) | 2022-05-13 | 압류 | 국OOOOOOOO | 0 | 소멸 | |
| 8(갑24) | 2024-09-30 | 임의경매 | (OOOOOOOOOOOO | 3,987,088,690 | 소멸 | 2024타경52534, 변경전:농업회사법인일성팜주식회사 |
관련 문서 (PDF)
클릭하면 원본 파일이 열립니다